房天下>北京二手房>朝阳二手房>太阳宫二手房>太阳星城火星园二手房

火星园2室1厅东北

分享

微信扫一扫分享好友
更多分享>

收藏

下载房天下APP
楼盘动态及时知

基本信息
建筑年代2010年
有无电梯
产权性质 商品房
挂牌时间 2025-10-27
梯户比例 两梯四户
供暖方式 集中供暖
房屋结构 暂无数据
抵押信息
楼层高度 暂无数据
上次交易 2012年03月31日
房源动态
  • 465
    房源浏览(人)
  • 4
    房源带看(次)
  • 30
    关注房源(人)
  • 当前房源报价为:999.00万
    2026-02-20

微信扫码查看更多

房源描述
  • 核心卖点
    相信为您推荐的这套房子您一定会满意,赶快行动吧,先到先得!
    房屋年代∶2010,面积∶94.0平方米,朝向∶西北
    1. 小区配备高端物业管理,让你享受宾至如归的服务;
    2. 小区人文素质高,是您的居家的绝佳选择;
    3. 小区居住安静舒适,让您拥有高品质的生活环境;
    4. 小区绿化率高,绿树成荫鸟语花香让您随时呼吸到新鲜空气。
  • 小区配套
    火星园是太阳星城三期项目,是一个综合建筑群,包括住宅、商业、办公和其他配套设施;项目交融风光水气帝京精华与国际都会时尚文明,未来项目将成就以“上等城市区域新生活场”为居宅理想的高尚社区。整个区域规划定位为“以绿色居住为导向的国际化大社区”,绿化用地占50%以上。坝河贯穿太阳星城,形成其特有的生态亲水建筑景观。同时,社区内精心营造小区景观,形成了双重景观相互映照,自然生态和精雕细琢的景观和谐结合。太阳星城三期在规划、建筑、产品、配套、生活模式等诸多方面同步世界主流都会形态,不但为这里全球化人群提供契合
房源图片
室内图
室内图
室内图
室内图
室内图
室内图
室内图
室内图
室内图
室内图
室内图
室内图
室内图
室内图
小区相关图
小区相关图
小区相关图
小区相关图
小区相关图
小区相关图
小区相关图
小区相关图
小区相关图
小区相关图
小区相关图
小区相关图
小区相关图
小区相关图
小区相关图
小区相关图
小区相关图
小区相关图
小区相关图
小区相关图
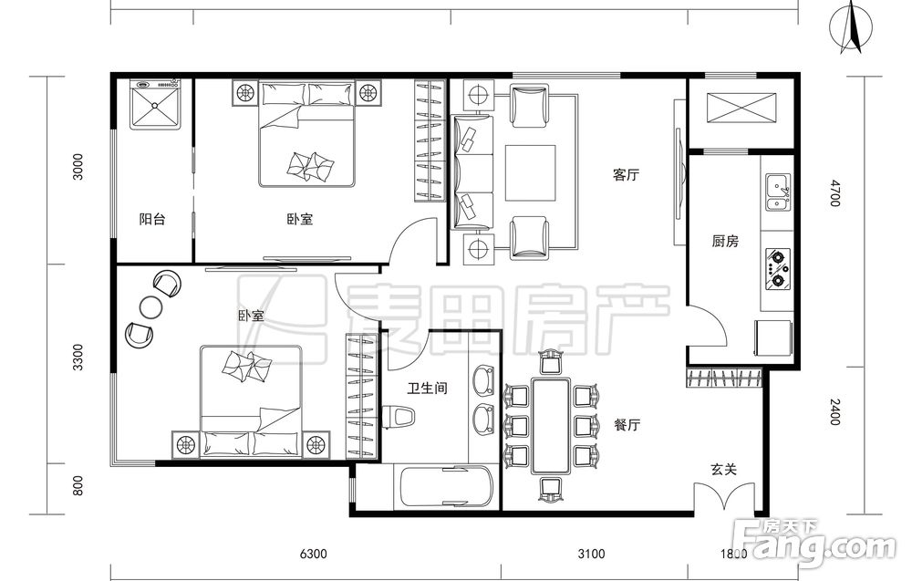
户型图
户型图
999
满五年满五年
暂无
户型
94.49平米
建筑面积
105725元/平米
单价
东北
朝向
中楼层
楼层(共26层)
精装
装修
小      区
太阳星城火星园(距10号线太阳宫站约414米)
区      域
北京麦田房产经纪有限公司

营业执照

闪电回复成交达人
太阳星城火星园小区信息
参考均价119123元/平米
同比去年↓3.44%
环比上月↑0.01%
收藏
物业类型 住宅
物业费用6.5元/㎡·月
建筑类型板塔结合
产权年限70
建筑年代2010年
绿 化 率35%
容 积 率2.86
人车分流
总楼栋数9
总 户 数1164
小区图片
周边配套
免责声明:房源信息由网站用户提供,其真实性、合法性由信息提供者负责,最终以政府部门登记备案为准。本网站不声明或保证内容之正确性和可靠性,购买该房屋时,请谨慎核查。入学情况仅凭历史经验总结,在此不承诺升学事宜。请您在签订合同之前,切勿支付任何形式的费用,以免上当受骗。