房天下>北京二手房>密云二手房>宾阳二手房>沿湖北区二手房

沿湖小区配套设施齐全,交通便利,看房方便

分享

微信扫一扫分享好友
更多分享>

收藏

下载房天下APP
楼盘动态及时知

基本信息
建筑年代1994年
有无电梯
产权性质 商品房
挂牌时间 2025-03-27
梯户比例 暂无数据
供暖方式 集中供暖
房屋结构 平层
抵押信息
楼层高度 暂无数据
上次交易 2009年12月21日
房源动态
  • 109
    房源浏览(人)
  • 6
    房源带看(次)
  • 2
    关注房源(人)
  • 当前房源报价为:185.00万
    2026-02-20

微信扫码查看更多

房源描述
  • 核心卖点
    售价卖点:
    1 性能价格比让您满意 包您买的放心
    2 如此低的单价 现在的市场中已经太难遇见,是您出手的好选择!低总价直接降低了您的购房压力。
  • 业主心态
    3 业主诚心换房出售 房源真实有效 看房后有较大议价空间
    4业主很随和,好沟通,家里意见统一,是非常靠谱的房源
  • 税费分析
    税费卖点:
    1 房本已满5年 房主名下住房 个税 增值税 全都没有
  • 小区配套
    新的商业中心万象汇商圈,地理位置非常优越,周边吃喝玩乐均十分便利
    2周边配套完善 孩子上学无需接 省事省力
  • 服务介绍
    本人从业十余年 聚焦多个密云高端项目,新房和二手房房源多多,给您贴心、周到的服务! 耐心为您介绍每套房屋的优缺点,根据您的需求,为您匹配适合的房源信息
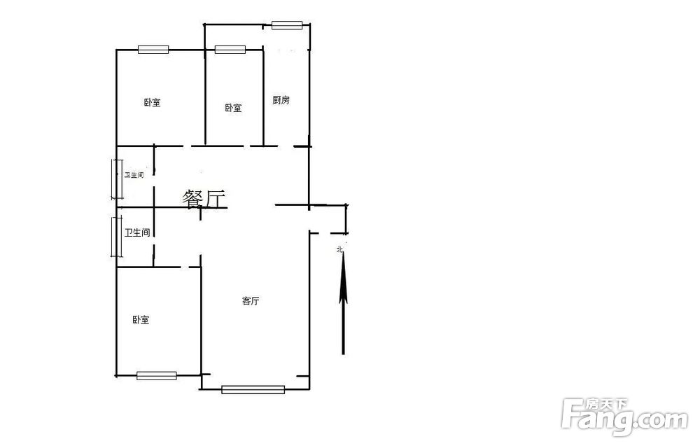
  • 户型解读
    此房是房 独立三居室 适合三代人居住 每个人都有独立的空间
    空间宽阔 采光充足通透性强 。
房源图片
室内图
室内图
室内图
室内图
室内图
室内图
室内图
室内图
室内图
室内图
室内图
室内图
室内图
室内图
室内图
室内图
室内图
室内图
室内图
室内图
小区相关图
小区相关图
户型图
户型图
185
满五年满五年
暂无
户型
108.83平米
建筑面积
16999元/平米
单价
南北
朝向
顶层
楼层(共6层)
其他
装修
小      区
区      域
北京锦绣嘉业房地产经纪有...

营业执照

沿湖北区小区信息
参考均价18316元/平米
同比去年↓12.98%
环比上月↓0.79%
收藏
物业类型 住宅
物业费用0.6元/㎡·月
建筑类型板楼
建筑年代2000年
绿 化 率25%
容 积 率1.9
人车分流
总楼栋数29
总 户 数1840
小区图片
周边配套
免责声明:房源信息由网站用户提供,其真实性、合法性由信息提供者负责,最终以政府部门登记备案为准。本网站不声明或保证内容之正确性和可靠性,购买该房屋时,请谨慎核查。入学情况仅凭历史经验总结,在此不承诺升学事宜。请您在签订合同之前,切勿支付任何形式的费用,以免上当受骗。