房天下>北京二手房>朝阳二手房>望京二手房>澳洲康都二手房

澳洲康都西南向两居室,采光视野好

分享

微信扫一扫分享好友
更多分享>

收藏

下载房天下APP
楼盘动态及时知

基本信息
建筑年代2006年
有无电梯
产权性质 商品房
挂牌时间 2025-04-25
梯户比例 两梯六户
供暖方式 集中供暖
房屋结构 平层
抵押信息
楼层高度 暂无数据
上次交易 2008年04月15日
房源动态
  • 630
    房源浏览(人)
  • 6
    房源带看(次)
  • 40
    关注房源(人)
  • 当前房源报价为:659.00万
    2026-02-20

微信扫码查看更多

房源描述
  • 核心卖点
    相信为您推荐的这套房子您一定会满意,赶快行动吧,先到先得!
    房屋年代∶2006,面积∶86.8平方米,朝向∶南
    1. 小区配备高端物业管理,让你享受宾至如归的服务;
    2. 小区人文素质高,是您的居家的绝佳选择;
    3. 小区居住安静舒适,让您拥有高品质的生活环境;
    4. 小区绿化率高,绿树成荫鸟语花香让您随时呼吸到新鲜空气。
  • 小区配套
    紧邻地铁14号线东湖渠站,北临普尔斯马特旗舰店,南临规划中的家乐福超市。小区是望京中档次社区,人车分流封闭式管理,主要居住人群为航空高管、艺术家、中央美院老师,人与人之间相处亲和融洽;围合式设计,使前后左右楼间距大,一层采光也不受影响,加上都是落地大窗户和飘窗设计,即使北边朝向屋里也不会暗;户型种类多,选择多,层次呈阶梯式,面积不跨层大,所以价格区间大,在大部分客户能承受的承受范围内。
  • 核心卖点
    相信为您推荐的这套房子您一定会满意,赶快行动吧,先到先得!
    房屋年代∶2006,面积∶86.8平方米,朝向∶南
    1. 小区配备高端物业管理,让你享受宾至如归的服务;
    2. 小区人文素质高,是您的居家的绝佳选择;
    3. 小区居住安静舒适,让您拥有高品质的生活环境;
    4. 小区绿化率高,绿树成荫鸟语花香让您随时呼吸到新鲜空气。
  • 小区配套
    紧邻地铁14号线东湖渠站,北临普尔斯马特旗舰店,南临规划中的家乐福超市。小区是望京中档次社区,人车分流封闭式管理,主要居住人群为航空高管、艺术家、中央美院老师,人与人之间相处亲和融洽;围合式设计,使前后左右楼间距大,一层采光也不受影响,加上都是落地大窗户和飘窗设计,即使北边朝向屋里也不会暗;户型种类多,选择多,层次呈阶梯式,面积不跨层大,所以价格区间大,在大部分客户能承受的承受范围内。
房源图片
室内图
室内图
室内图
室内图
室内图
室内图
室内图
室内图
室内图
室内图
室内图
室内图
室内图
室内图
室内图
室内图
小区相关图
小区相关图
小区相关图
小区相关图
小区相关图
小区相关图
小区相关图
小区相关图
小区相关图
小区相关图
小区相关图
小区相关图
小区相关图
小区相关图
小区相关图
小区相关图
小区相关图
小区相关图
小区相关图
小区相关图
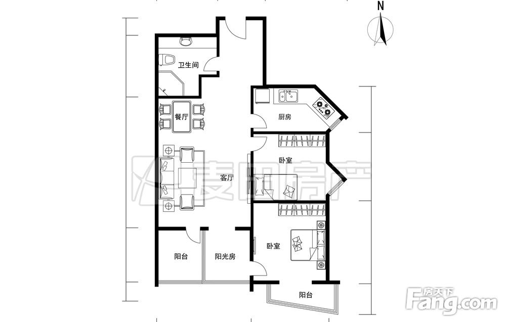
户型图
户型图
659
满五年满五年
2室1厅1卫
户型
86.09平米
建筑面积
76548元/平米
单价
东南
朝向
顶层
楼层(共28层)
精装
装修
小      区
澳洲康都(距14号线东湖渠站约799米)
区      域
北京麦田房产经纪有限公司

营业执照

闪电回复成交达人
北京麦田房产经纪有限公司

营业执照

澳洲康都小区信息
参考均价69692元/平米
同比去年↓12.23%
环比上月↓2.16%
收藏
物业类型 住宅
物业费用2.5元/㎡·月
建筑类型板塔结合
建筑年代2007年
绿 化 率30.5%
容 积 率4.67
人车分流
总楼栋数10
总 户 数2623
小区图片
周边配套
免责声明:房源信息由网站用户提供,其真实性、合法性由信息提供者负责,最终以政府部门登记备案为准。本网站不声明或保证内容之正确性和可靠性,购买该房屋时,请谨慎核查。入学情况仅凭历史经验总结,在此不承诺升学事宜。请您在签订合同之前,切勿支付任何形式的费用,以免上当受骗。