房天下>北京二手房>密云二手房>密云其它二手房>白河涧别墅二手房

白河涧翠竹园4居室户型房正采光好不临街新上房源!

分享

微信扫一扫分享好友
更多分享>

收藏

下载房天下APP
楼盘动态及时知

基本信息
建筑年代2006年
有无电梯
产权性质 商品房
挂牌时间 2026-02-08
梯户比例 暂无数据
供暖方式 暂无数据
房屋结构 平层
抵押信息 暂无数据
楼层高度 暂无数据
上次交易 暂无数据
房源动态
  • -
    房源浏览(人)
  • -
    房源带看(次)
  • -
    关注房源(人)
  • 当前房源报价为:610.00万
    2026-02-20

微信扫码查看更多

房源描述
  • 核心卖点

    房子优势
    1、格局方正。大厅主卧朝朝南!朝向:朝南
    2.绿化率0.63,多种绿色植被,的氧吧,让您的生活更加健康!
    3、采光,全天8采光,每天都能沐浴着阳光
    4、精装修
    5、清晰
    6、业主非常配合,随时联系开门看房,随时签约
    小区优势:
    1、本小区物业连续N次被评为“物业”
    2、小区实行人车分流,无需担心老人小孩在小区内安全
    3、出门步行10到超市;车站;出行方便。
    区位优势:
    1、附近地铁:暂无资料,京密引水渠
    2.交通方便
    3.地段好,空间巨大
    作为一线房产人员,从业多年,贴合实际专业为您解读当下市场,解读当下新政,帮你计算税费,合理,圆您家的梦!
    的我向您承诺:房源有效,一对一电话沟通!
  • 业主心态
    房东置换,诚心出售,价格可以再谈,欢迎看房,随时恭候。
  • 税费分析
    关于本房的税费信息情况,请电话联系我,我将详细的为您讲解!
  • 小区配套
    小区地理位置佳,绿化环境优越整洁,居民素质高,物业管理完善,适宜居住
  • 服务介绍
    本人做房产多年,一直本着专业的房产知识,为您服务,我会在短的时间内帮您买好满意的房子,不让您错失任何好房子,更不让您每天为买房的事烦心,欢迎随时拨打我电话。
房源图片
室内图
室内图
室内图
室内图
室内图
室内图
室内图
室内图
室内图
室内图
室内图
室内图
室内图
室内图
室内图
室内图
室内图
室内图
室内图
室内图
室内图
室内图
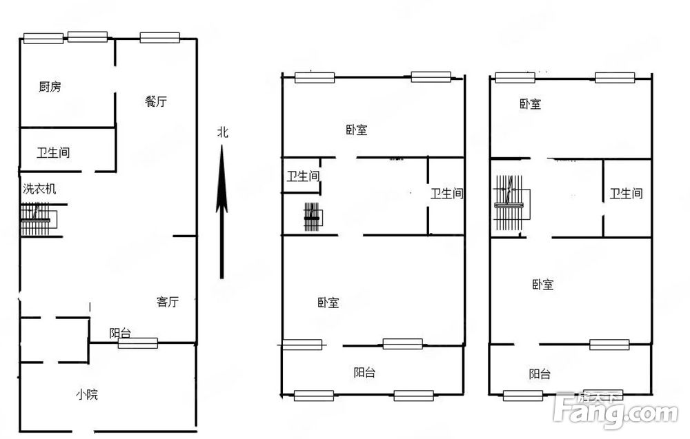
户型图
户型图
610
满五满五
4室2厅3卫
户型
179.54平米
建筑面积
33976元/平米
单价
进门朝向
3层
地上层数
精装修
装修程度
小      区
区      域
北京金色时光房地产经纪有...

营业执照

白河涧别墅小区信息
参考均价35147元/平米
同比去年↑26.84%
环比上月↓3.75%
收藏
物业类型 别墅
物业费用0.8元/㎡·月
建筑类型联排,独栋
建筑年代2005年
绿 化 率42.8%
容 积 率0.7
人车分流
总楼栋数1
总 户 数4
小区图片
周边配套
免责声明:房源信息由网站用户提供,其真实性、合法性由信息提供者负责,最终以政府部门登记备案为准。本网站不声明或保证内容之正确性和可靠性,购买该房屋时,请谨慎核查。入学情况仅凭历史经验总结,在此不承诺升学事宜。请您在签订合同之前,切勿支付任何形式的费用,以免上当受骗。