房天下>北京二手房>怀柔二手房>雁栖二手房>育龙铭居二手房

天地神通 怀柔雁栖 育龙铭居 两居客厅朝南 南北通透 采光好

分享

微信扫一扫分享好友
更多分享>

收藏

下载房天下APP
楼盘动态及时知

基本信息
建筑年代2011年
有无电梯
产权性质 商品房
挂牌时间 2026-02-05
梯户比例 暂无数据
供暖方式 暂无数据
房屋结构 平层
抵押信息 暂无数据
楼层高度 暂无数据
上次交易 暂无数据
房源动态
  • -
    房源浏览(人)
  • -
    房源带看(次)
  • -
    关注房源(人)
  • 当前房源报价为:115.00万
    2026-02-18

微信扫码查看更多

房源描述
  • 核心卖点
    本房源位于怀柔雁栖乐园大街16号育龙铭居小区,2011年建成的高层住宅,总高9层。这套66.03平米的精装修两居室,南北通透朝向,户型格局为2室1厅1卫,目前满五,总价仅115万,折合单价17416元/平米。

    该房源为9层电梯房中的高层,采光通风俱佳。精装修状态可直接入住,省去装修烦恼。南北朝向的设计让室内光线充足,空气流通性好。作为满五的住宅,交易税费较低,性价比突出。周边生活配套完善,是刚需购房者的优质选择。
房源图片
室内图
室内图
室内图
室内图
室内图
室内图
室内图
室内图
室内图
室内图
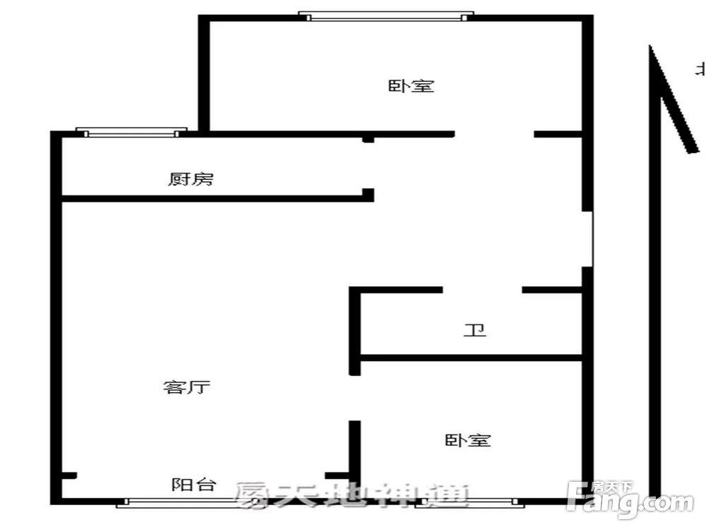
户型图
户型图
115
满五满五
2室1厅1卫
户型
66.03平米
建筑面积
17416元/平米
单价
南北
朝向
高层
楼层(共9层)
精装修
装修
小      区
区      域
北京天地神通房地产经纪有...

营业执照

育龙铭居小区信息
参考均价19825元/平米
同比去年↓5.85%
环比上月↓1.12%
收藏
物业类型 住宅
建筑类型板楼
产权年限70
建筑年代2012年
绿 化 率35%
容 积 率3
人车分流
总楼栋数12
总 户 数1006
小区图片
周边配套
免责声明:房源信息由网站用户提供,其真实性、合法性由信息提供者负责,最终以政府部门登记备案为准。本网站不声明或保证内容之正确性和可靠性,购买该房屋时,请谨慎核查。入学情况仅凭历史经验总结,在此不承诺升学事宜。请您在签订合同之前,切勿支付任何形式的费用,以免上当受骗。