房天下>北京二手房>丰台二手房>丽泽桥二手房>西宸原著二手房

南北通透西宸原著4室2厅精装修

分享

微信扫一扫分享好友
更多分享>

收藏

下载房天下APP
楼盘动态及时知

基本信息
建筑年代2017年
有无电梯
产权性质 个人产权
挂牌时间 2026-02-03
梯户比例 暂无数据
供暖方式 暂无数据
房屋结构 平层
抵押信息 暂无数据
楼层高度 暂无数据
上次交易 暂无数据
房源动态
  • -
    房源浏览(人)
  • -
    房源带看(次)
  • -
    关注房源(人)
  • 当前房源报价为:1400.00万
    2026-02-19

微信扫码查看更多

房源描述
  • 核心卖点
    相信为您推荐的这套房子您一定会满意,赶快行动吧,先到先得!
    房屋年代∶2017,面积∶142.84平方米,朝向∶南北
    1. 小区配备高端物业管理,让你享受宾至如归的服务;
    2. 小区人文素质高,是您的居家的绝佳选择;
    3. 小区居住安静舒适,让您拥有高品质的生活环境;
    4. 小区绿化率高,绿树成荫鸟语花香让您随时呼吸到新鲜空气。
  • 小区配套
    2014年2月,龙湖地产携手葛洲坝拿下丽泽商务区重要的一块地,2015年6月,西宸原著,首秀30套一战成名,当月认购额10亿,开启了内城别墅的先河。西宸原著,西三环,内城藏府园,龙湖别墅品系原著系塔尖之作,承龙湖·颐和原著血统,基于西三环西贵地脉,创新室演绎原著系“中技西魂”之精髓,铸造原著家族福祉,西三环地脉上的园和府。
房源图片
室内图
室内图
室内图
室内图
室内图
室内图
室内图
室内图
室内图
室内图
室内图
室内图
室内图
室内图
室内图
室内图
室内图
室内图
室内图
室内图
室内图
室内图
小区相关图
小区相关图
小区相关图
小区相关图
小区相关图
小区相关图
小区相关图
小区相关图
小区相关图
小区相关图
小区相关图
小区相关图
小区相关图
小区相关图
小区相关图
小区相关图
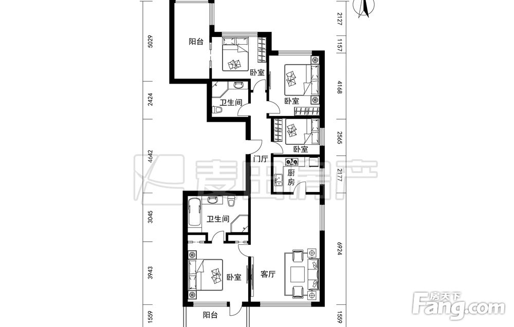
户型图
户型图
1400
4室2厅2卫
户型
142.84平米
建筑面积
98012元/平米
单价
南北
朝向
低层
楼层(共20层)
精装修
装修
小      区
西宸原著(距10号线西局站约921米)
区      域
西宸原著小区信息
参考均价105504元/平米
同比去年↓5.3%
环比上月↓2.01%
收藏
物业类型 住宅
物业费用9.8元/㎡·月
建筑类型塔楼
产权年限70
建筑年代2016年
绿 化 率30%
容 积 率2.2
人车分流
总楼栋数2
总 户 数160
小区图片
周边配套
免责声明:房源信息由网站用户提供,其真实性、合法性由信息提供者负责,最终以政府部门登记备案为准。本网站不声明或保证内容之正确性和可靠性,购买该房屋时,请谨慎核查。入学情况仅凭历史经验总结,在此不承诺升学事宜。请您在签订合同之前,切勿支付任何形式的费用,以免上当受骗。