房天下>北京二手房>顺义二手房>顺义其它二手房>富力首开·金禧璞瑅二手房

国企首开低密电梯洋房160平510万精装现房 大五居

分享

微信扫一扫分享好友
更多分享>

收藏

下载房天下APP
楼盘动态及时知

基本信息
建筑年代2017年
有无电梯
产权性质 个人产权
挂牌时间 2026-01-30
梯户比例 暂无数据
供暖方式 暂无数据
房屋结构 平层
抵押信息 暂无数据
楼层高度 暂无数据
上次交易 暂无数据
房源动态
  • -
    房源浏览(人)
  • -
    房源带看(次)
  • -
    关注房源(人)
  • 当前房源报价为:510.00万
    2026-02-03

微信扫码查看更多

房源描述
  • 核心卖点
    开发商:富力&首开建筑类型:洋房、叠拼总户数:洋房664套,叠拼232套,共计896套。
    占地面积:96884.68㎡建筑面积:254164㎡物业:恒富物业:2.9米层数:8层,一梯两户
    :30%:1.5物业费:洋房4.9元叠拼地上6.5,地下2.1元
    采暖方式:集中供暖交房时间:2023年5月
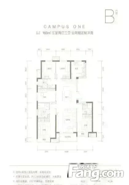
    精装洋房140平、总价650万~750万/套左右160平、总价750万~800万/套左右
    叠拼别墅上叠:390~430平下叠:360~390平
  • 业主心态
    1:所出售的房源均为新房无差价

    2:交房时只需交付正常购房费用,契税和工维,购房成本低,品质高

    3:您信任我,我根据您的需求真诚为您分析置业北京的核心点

    4: 子贤24时工作,随时欢迎您的来电136.8314.6982
  • 税费分析
    关于本房的税费信息情况,请电话联系我,我将详细的为您讲解!
  • 小区配套
    小区地理位置佳,绿化环境优越整洁,居民素质高,物业管理完善,适宜居住
  • 服务介绍
    本人做房产多年,一直本着专业的房产知识,为您服务,我会在短的时间内帮您买好满意的房子,不让您错失任何好房子,更不让您每天为买房的事烦心,欢迎随时拨打我电话。
  • 户型解读
    房屋拥有相对宽松的尺寸,布局通透,动静分离,设计豪华
房源图片
室内图
室内图
室内图
室内图
室内图
室内图
室内图
室内图
室内图
室内图
室内图
室内图
室内图
室内图
室内图
室内图
室内图
室内图
室内图
室内图
室内图
室内图
小区相关图
小区相关图
小区相关图
小区相关图
小区相关图
小区相关图
小区相关图
小区相关图
小区相关图
小区相关图
小区相关图
小区相关图
户型图
户型图
510
满五满五配套成熟小区中心首付低
4室2厅3卫
户型
160平米
建筑面积
31875元/平米
单价
南北
朝向
高层
楼层(共8层)
精装修
装修
北京美联房地产经纪有限公...

营业执照

富力首开·金禧璞瑅小区信息
参考均价17630元/平米
同比去年↓7.74%
环比上月↓2.48%
收藏
物业类型 住宅
物业费用4.9元/㎡·月
建筑类型板楼
产权年限70
绿 化 率30%
容 积 率1.5
人车分流
总楼栋数28
总 户 数761
周边配套
免责声明:房源信息由网站用户提供,其真实性、合法性由信息提供者负责,最终以政府部门登记备案为准。本网站不声明或保证内容之正确性和可靠性,购买该房屋时,请谨慎核查。入学情况仅凭历史经验总结,在此不承诺升学事宜。请您在签订合同之前,切勿支付任何形式的费用,以免上当受骗。