房天下>北京二手房>怀柔二手房>怀柔城区二手房>南华园四区二手房

天地神通 怀柔南华园四区 三居室 诚意出售 看房方便

分享

微信扫一扫分享好友
更多分享>

收藏

下载房天下APP
楼盘动态及时知

基本信息
建筑年代1999年
有无电梯
产权性质 商品房
挂牌时间 2026-02-02
梯户比例 暂无数据
供暖方式 暂无数据
房屋结构 平层
抵押信息 暂无数据
楼层高度 暂无数据
上次交易 暂无数据
房源动态
  • -
    房源浏览(人)
  • -
    房源带看(次)
  • -
    关注房源(人)
  • 当前房源报价为:198.00万
    2026-02-20

微信扫码查看更多

房源描述
  • 核心卖点
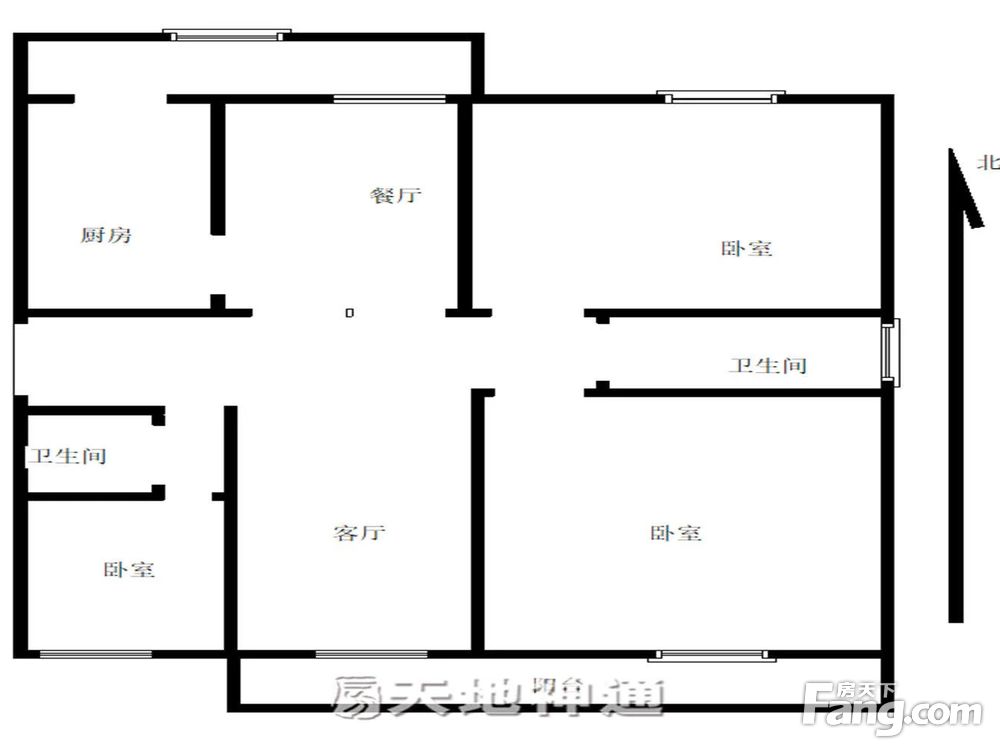
    本房源位于怀柔城区南华园四区,地处南华大街核心地段,交通便利,生活配套成熟。房屋为南北朝向,采光通风俱佳,建筑面积108平米,格局方正,设计为3室2厅2卫1厨1阳台,满足家庭多样化居住需求。高层位置视野开阔,居住舒适度高。

    房屋建成于1999年,房本满五,交易税费优势明显。简装修状态便于买家按自身喜好改造或直接入住。小区环境安静,周边生活设施齐全,适合追求性价比与实用性的购房家庭。总价208万,单价19259元/平米,性价比突出,是怀柔城区难得的优质住宅选择。
房源图片
室内图
室内图
室内图
室内图
室内图
室内图
室内图
室内图
室内图
室内图
室内图
室内图
室内图
室内图
室内图
室内图
室内图
室内图
室内图
室内图
小区相关图
小区相关图
小区相关图
小区相关图
小区相关图
小区相关图
小区相关图
小区相关图
小区相关图
小区相关图
户型图
户型图
198
满五满五
3室2厅2卫
户型
108平米
建筑面积
18333元/平米
单价
南北
朝向
高层
楼层(共6层)
简装修
装修
小      区
区      域
北京天地神通房地产经纪有...

营业执照

南华园四区小区信息
参考均价21193元/平米
同比去年↓3.8%
环比上月↑1.88%
收藏
物业类型 住宅
物业费用0.5元/㎡·月
建筑类型板楼
建筑年代1999年
绿 化 率40%
容 积 率3.12
人车分流
总楼栋数54
总 户 数1206
小区图片
周边配套
免责声明:房源信息由网站用户提供,其真实性、合法性由信息提供者负责,最终以政府部门登记备案为准。本网站不声明或保证内容之正确性和可靠性,购买该房屋时,请谨慎核查。入学情况仅凭历史经验总结,在此不承诺升学事宜。请您在签订合同之前,切勿支付任何形式的费用,以免上当受骗。