房天下>北京二手房>朝阳二手房>中央别墅区二手房>中建璞园二手房

中建璞园一手房88 平 3 居140 平 4 居无

分享

微信扫一扫分享好友
更多分享>

收藏

下载房天下APP
楼盘动态及时知

基本信息
建筑年代2025年
有无电梯
产权性质 个人产权
挂牌时间 2025-12-28
梯户比例 暂无数据
供暖方式 暂无数据
房屋结构 平层
抵押信息 暂无数据
楼层高度 3.3
上次交易 暂无数据
房源动态
  • -
    房源浏览(人)
  • -
    房源带看(次)
  • -
    关注房源(人)
  • 当前房源报价为:580.00万
    2026-02-18

微信扫码查看更多

房源描述
  • 核心卖点
    满足家庭成长需求:适合三代同堂或者有两个孩子的家庭居住。每个家庭成员都能有相对独立的空间,保证了生活的私密性。像孩子长大后需要自己的房间学习和休息,三居室就可以很好地满足。
    - 功能分区多样:除了卧室,还可以设置独立的餐厅、书房、活动室等。可以把一个房间改造成家庭影院,为家庭生活增添乐趣。
    - 舒适性高:整体空间宽敞,居住起来更加舒适,不会让人感觉拥挤。在客厅可以摆放大型的沙发和茶几,方便家庭聚会和日常休闲。
  • 业主心态
    中建一局
  • 户型解读
    - 功能分区丰富:可以划分为三个卧室、一个客厅、一个餐厅、一个厨房和至少一个卫生间。有些户型还会有双卫生间设计,方便家庭成员使用。在空间允许的情况下,还能设置一个独立的储物室或者阳台改造成的休闲区。
    - 空间尺度适宜:客厅面积相对较大,能够满足摆放沙发、电视、茶几等家具的需求,并且有足够的活动空间。卧室的大小也能满足放置床、衣柜等基本家具,部分主卧还带有独立卫生间,提升居住的舒适度。
    - 采光和通风条件好:三居室户型通常有较好的朝向规划,能够保证主要房间都有良好的采光和通风。例如,主卧和次卧可能朝南,客厅朝东或朝西,北面设置厨房和卫生间,这样空气能够在室内形成良好的对流。
房源图片
室内图
室内图
室内图
室内图
室内图
室内图
室内图
室内图
小区相关图
小区相关图
小区相关图
小区相关图
小区相关图
小区相关图
小区相关图
小区相关图
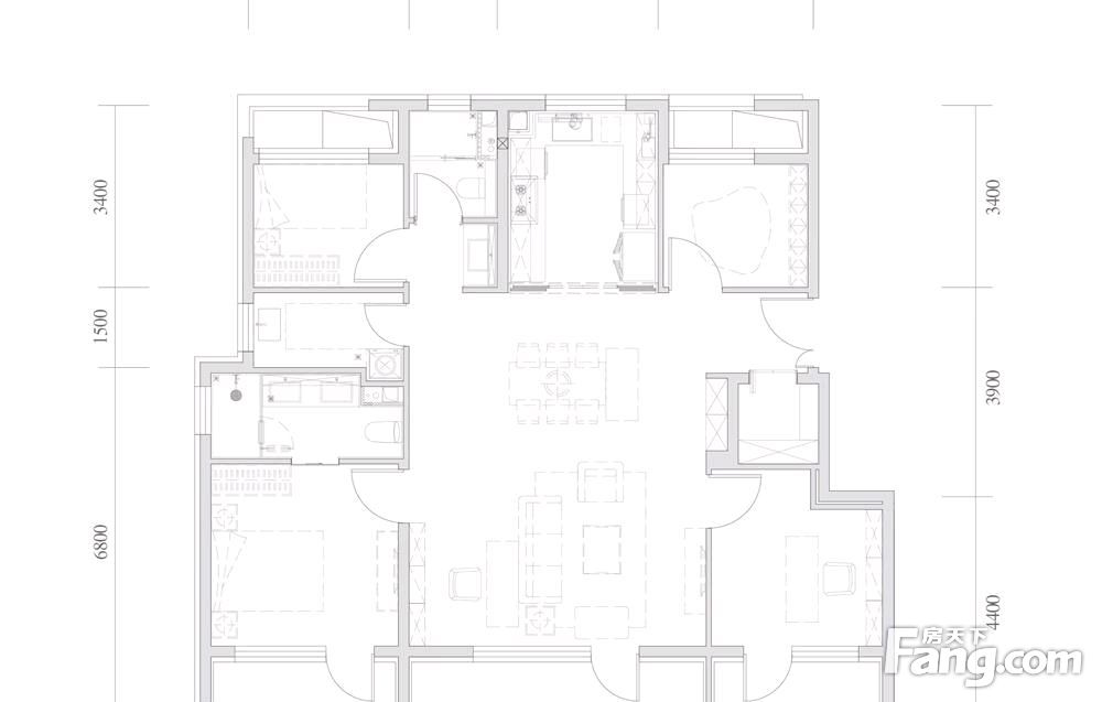
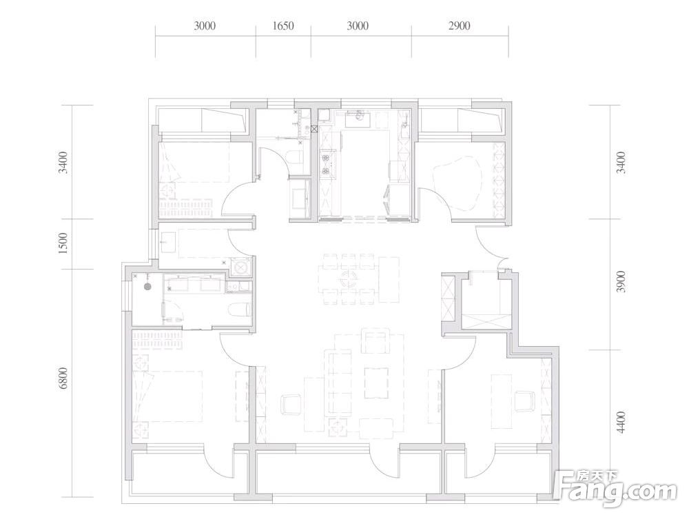
户型图
户型图
户型图
户型图
580
一梯一户户型佳拎包入住黄金楼层
3室2厅2卫
户型
88平米
建筑面积
65909元/平米
单价
南北
朝向
中层
楼层(共16层)
精装修
装修
小      区
区      域
北京利诚房地产经纪有限公...

营业执照

中建璞园小区信息
参考均价62546元/平米
同比去年↓2.73%
环比上月↓4.82%
收藏
物业类型 住宅
物业费用6.8元/㎡·月
建筑类型板楼
产权年限70
绿 化 率30%
容 积 率1.5
人车分流
总楼栋数28
总 户 数507
小区日照
小区图片
周边配套
免责声明:房源信息由网站用户提供,其真实性、合法性由信息提供者负责,最终以政府部门登记备案为准。本网站不声明或保证内容之正确性和可靠性,购买该房屋时,请谨慎核查。入学情况仅凭历史经验总结,在此不承诺升学事宜。请您在签订合同之前,切勿支付任何形式的费用,以免上当受骗。