房天下>北京二手房>朝阳二手房>大望路二手房>金地国际花园二手房

纯板楼社区 南北通透3居室 国贸CBD 金地国际花园

分享

微信扫一扫分享好友
更多分享>

收藏

下载房天下APP
楼盘动态及时知

基本信息
建筑年代2004年
有无电梯
产权性质 个人产权
挂牌时间 2025-12-26
梯户比例 暂无数据
供暖方式 暂无数据
房屋结构 平层
抵押信息 暂无数据
楼层高度 暂无数据
上次交易 暂无数据
房源动态
  • -
    房源浏览(人)
  • -
    房源带看(次)
  • -
    关注房源(人)
  • 当前房源报价为:1630.00万
    2026-02-18

微信扫码查看更多

房源描述
  • 核心卖点
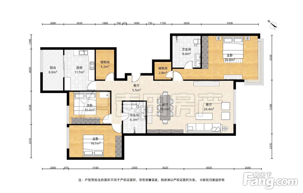
    此房是《金地国际椛园》小区,一套198平米的南北通透3居室,性价比高,是目前大力推荐的一套房源
    【房源详情】:
    (1)、金地国际椛园是国贸CBD商圈,金地集团开发的纯板楼社区
    (2)、金地物业提供管理,封闭式社区,绿化环境,有会所
    (3)、这个房子面积198平米,南北通透3居室,朝向好,通风好
    (4)、房子的楼层不高也不低,客厅和主卧室朝南,双次卧朝北,南北通透
    (5)、视野前后都是开阔的,房子是开发商统一装修,房况还不错
  • 业主心态
    【新房】:我司代理北京近100个新房项目,均可为您介绍,带您看。您通过我司看新房,既“无居间费”,又省去自己找房的麻烦,还可享受一定团购优惠,并有我司第三方保障。
    _
    【二手房】:北京核心区(东二环:建国门,东直门,国贸CBD等),豪宅区(东三环:太阳宫,三元桥,朝阳公园等),中端改善区(东四环:四惠,百子湾,青年路等),均是我的主要业务区域。
    _
    【买房找对人】:欢迎您告诉我您的购房需求,我尽心尽力为您服务。
  • 小区配套
    金地国际花园由南区的金地国际大厦和北区的金地国际公寓组成。公寓共有5栋板楼,楼栋错落,生动活泼的天际线和南区共同创造出一个标志性的社区。小区内有各种室内外休闲设施,楼栋户户朝南,视野广阔,营造出景色秀丽的区内环境。
  • 服务介绍
    【个人简介】:
    我叫戴邹洋,大学本科毕业,于2012年入司,2015年任团队业务经理多年,有丰富的高端房产交易经验。十几年期间,服务过众多高端业主与客户,希望能让您有更好的购房体验。
房源图片
室内图
室内图
室内图
室内图
室内图
室内图
室内图
室内图
室内图
室内图
室内图
室内图
室内图
室内图
室内图
室内图
室内图
室内图
小区相关图
小区相关图
小区相关图
小区相关图
小区相关图
小区相关图
小区相关图
小区相关图
小区相关图
小区相关图
小区相关图
小区相关图
小区相关图
小区相关图
小区相关图
小区相关图
小区相关图
小区相关图
小区相关图
小区相关图
户型图
户型图
户型图
户型图
1630
3室2厅2卫
户型
198平米
建筑面积
82323元/平米
单价
南北
朝向
低层
楼层(共32层)
精装修
装修
小      区
金地国际花园(距1号线(八通线)大望路站约262米)
区      域
金地国际花园小区信息
参考均价92447元/平米
同比去年↓1.58%
环比上月↓0.33%
收藏
物业类型 住宅
物业费用6元/㎡·月
建筑类型板楼
建筑年代2004年
绿 化 率41%
容 积 率2
人车分流
总楼栋数5
总 户 数1645
小区日照
小区图片
周边配套
免责声明:房源信息由网站用户提供,其真实性、合法性由信息提供者负责,最终以政府部门登记备案为准。本网站不声明或保证内容之正确性和可靠性,购买该房屋时,请谨慎核查。入学情况仅凭历史经验总结,在此不承诺升学事宜。请您在签订合同之前,切勿支付任何形式的费用,以免上当受骗。