房天下>北京二手房>房山二手房>良乡二手房>恒大·滨河左岸二手房

良乡·恒大滨河左岸荷园南路28号院·3室·1厅

分享

微信扫一扫分享好友
更多分享>

收藏

下载房天下APP
楼盘动态及时知

基本信息
建筑年代2018年
有无电梯
产权性质 个人产权
挂牌时间 2026-01-11
梯户比例 暂无数据
供暖方式 暂无数据
房屋结构 平层
抵押信息 暂无数据
楼层高度 暂无数据
上次交易 暂无数据
房源动态
  • -
    房源浏览(人)
  • -
    房源带看(次)
  • -
    关注房源(人)
  • 当前房源报价为:169.00万
    2026-02-21

微信扫码查看更多

房源描述
  • 核心卖点
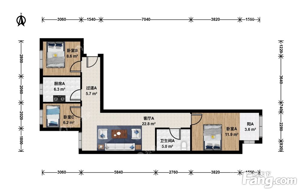
    <br>核心卖点:低楼层,上下楼方便<br>户型介绍:此房户型为3室1厅1卫,建筑面积为87.27平米,朝向为东西。<br>交通出行:周边有多条公交线路,交通出行便利
  • 小区配套
    商场:国泰良辰百货、中大瑞祥百货市场;医院:北京仁德医院、北京市房山区良乡医院;银行:中国建设银行(良乡大学城支行)、北京农商银行(房山支行营业部);
房源图片
室内图
室内图
室内图
室内图
室内图
室内图
室内图
室内图
室内图
室内图
室内图
室内图
室内图
室内图
户型图
户型图
169
满五满五
3室1厅1卫
户型
87.27平米
建筑面积
19365元/平米
单价
东西
朝向
低层
楼层(共15层)
精装修
装修
小      区
恒大·滨河左岸(距房山线良乡大学城西站约936米)
区      域
北京我爱我家华熙房地产经...

营业执照

闪电回复
恒大·滨河左岸小区信息
参考均价19473元/平米
同比去年↓13.34%
环比上月↓0.99%
收藏
物业类型 住宅
物业费用4.5元/㎡·月
建筑类型板塔结合
产权年限70
建筑年代2018年
绿 化 率30%
容 积 率2.2
人车分流
总楼栋数8
总 户 数1566
周边配套
免责声明:房源信息由网站用户提供,其真实性、合法性由信息提供者负责,最终以政府部门登记备案为准。本网站不声明或保证内容之正确性和可靠性,购买该房屋时,请谨慎核查。入学情况仅凭历史经验总结,在此不承诺升学事宜。请您在签订合同之前,切勿支付任何形式的费用,以免上当受骗。