房天下>北京二手房>朝阳二手房>太阳宫二手房>红玺台二手房

南北通透红玺台2室2厅精装修

分享

微信扫一扫分享好友
更多分享>

收藏

下载房天下APP
楼盘动态及时知

基本信息
建筑年代2012年
有无电梯
产权性质 个人产权
挂牌时间 2026-02-05
梯户比例 暂无数据
供暖方式 暂无数据
房屋结构 平层
抵押信息 暂无数据
楼层高度 暂无数据
上次交易 暂无数据
房源动态
  • -
    房源浏览(人)
  • -
    房源带看(次)
  • -
    关注房源(人)
  • 当前房源报价为:1260.00万
    2026-02-17

微信扫码查看更多

房源描述
  • 核心卖点
    相信为您推荐的这套房子您一定会满意,赶快行动吧,先到先得!
    房屋年代∶2012,面积∶86.08平方米,朝向∶南北
    1. 小区配备高端物业管理,让你享受宾至如归的服务;
    2. 小区人文素质高,是您的居家的绝佳选择;
    3. 小区居住安静舒适,让您拥有高品质的生活环境;
    4. 小区绿化率高,绿树成荫鸟语花香让您随时呼吸到新鲜空气。
  • 小区配套
    红玺台位于太阳公元项目的西南角,属于太阳宫板块,在东北三、四环之间。四周被亚奥商圈、东直门商圈、燕莎商圈和望京商圈四大商圈包围。红玺台总占地面积约55000平米;总建筑面积逾13万平米;由7幢高层高端住宅建筑组成;170-300平米大户型,为纯粹的高端社区。红玺台位于朝阳区东北三环太阳宫桥向北大约800米处,结合现代主义建筑,引入东方传统素材。由内到外都有设计感。户型270度三面采光,大尺度开窗设计,大开间小进深。小区于2010年由懋源开发商建设,分三期建成,一共7栋楼, 小户型主打71-86平米开间以及LOFT,大户型以161-310平米
房源图片
室内图
室内图
室内图
室内图
室内图
室内图
室内图
室内图
室内图
室内图
室内图
室内图
室内图
室内图
室内图
室内图
室内图
室内图
小区相关图
小区相关图
小区相关图
小区相关图
小区相关图
小区相关图
小区相关图
小区相关图
小区相关图
小区相关图
小区相关图
小区相关图
小区相关图
小区相关图
小区相关图
小区相关图
小区相关图
小区相关图
小区相关图
小区相关图
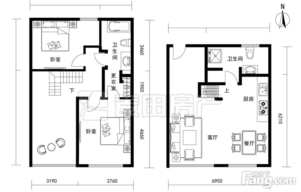
户型图
户型图
户型图
户型图
1260
满五满五
2室2厅2卫
户型
86.08平米
建筑面积
146375元/平米
单价
南北
朝向
低层
楼层(共19层)
精装修
装修
小      区
红玺台(距10号线芍药居站约319米)
区      域
红玺台小区信息
参考均价143346元/平米
同比去年↓7.46%
环比上月↓1.11%
收藏
物业类型 住宅
物业费用5.97元/㎡·月
建筑类型板楼
产权年限70
建筑年代2011年
绿 化 率35%
容 积 率2.8
人车分流
总楼栋数10
总 户 数580
小区日照
小区图片
周边配套
免责声明:房源信息由网站用户提供,其真实性、合法性由信息提供者负责,最终以政府部门登记备案为准。本网站不声明或保证内容之正确性和可靠性,购买该房屋时,请谨慎核查。入学情况仅凭历史经验总结,在此不承诺升学事宜。请您在签订合同之前,切勿支付任何形式的费用,以免上当受骗。