房天下>北京二手房>海淀二手房>上庄二手房>保利建工·嘉华天珺二手房

北京海淀 第四代住宅,0公摊,地铁16号线通勤 西二旗,西城

分享

微信扫一扫分享好友
更多分享>

收藏

下载房天下APP
楼盘动态及时知

基本信息
建筑年代2025年
有无电梯
产权性质 个人产权
挂牌时间 2025-12-16
梯户比例 暂无数据
供暖方式 暂无数据
房屋结构 平层
抵押信息 暂无数据
楼层高度 暂无数据
上次交易 暂无数据
房源动态
  • -
    房源浏览(人)
  • -
    房源带看(次)
  • -
    关注房源(人)
  • 当前房源报价为:1100.00万
    2026-02-19

微信扫码查看更多

房源描述
  • 核心卖点
    1、小区环境幽雅,看花园位置安静。

    2、户型方正、装修保养得当,看房方便看中。

    3、出入地铁公交方便,银行、大型,近中。

    4、成熟小区,购物/休闲/娱乐/生活配套齐全。
  • 业主心态
    业主诚心出售此房,欢迎您看房,如需了解其他信息请与我联系
  • 税费分析
    产权干净,税费清晰,欢迎来电咨询该房屋详情,静候您的来电!
  • 小区配套
    楼盘名称:保利建工嘉华天珺 所属开发商产品线:保利物业 均价:865000元/平项目地址:西北旺镇永丰产业基地(新)H地块HD、0132.0162等地块 总栋数:26栋 总户数:1276户 产权年限:70年 建筑类型:板楼 占地面积:78800平米 建筑面积:149200平米 容积率:1.7 绿化面积:23640 绿化率:30% 总车位数:1531 底下车位:1531 车位配比:1:1.2 车位属性:出租+出售 出售价格:30-50W 出租价格:0.6-0.6K :80-85% 装修标准:精装修 装修情况:精装修 项目特点:人车分流封闭小区
  • 服务介绍
    我从事房产行业多年,积累了大量的专业知识,也得到了业主、客户的信赖和认可,为您买到合适的房子是我的服务宗旨。
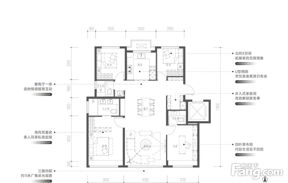
  • 户型解读
    四横三纵一轨道 城市引力圈 中关村旁 目式教育(具体交房划片为准) 约200米至大悦城 近享繁华 医研机构汇聚,护佑健康人生 约1千米至故宫北院,国脉文化坐标 光幕建筑,赋新人居审美,玉境花园,栖居自然之境 品牌国企,品质保障
房源图片
室内图
室内图
室内图
室内图
室内图
室内图
室内图
室内图
室内图
室内图
室内图
室内图
室内图
室内图
室内图
室内图
室内图
室内图
室内图
室内图
室内图
室内图
室内图
室内图
室内图
室内图
室内图
室内图
室内图
室内图
室内图
室内图
室内图
室内图
室内图
室内图
小区相关图
小区相关图
小区相关图
小区相关图
小区相关图
小区相关图
小区相关图
小区相关图
小区相关图
小区相关图
小区相关图
小区相关图
小区相关图
小区相关图
小区相关图
小区相关图
户型图
户型图
1100
配套成熟一梯一户拎包入住户型佳
4室2厅3卫
户型
134平米
建筑面积
82090元/平米
单价
南北
朝向
中层
楼层(共11层)
精装修
装修
区      域
北京誉泽房地产经纪有限公...

营业执照

保利建工·嘉华天珺小区信息
参考均价81571元/平米
同比去年 暂无资料
环比上月 暂无资料
收藏
物业类型 住宅
物业费用6.96元/㎡·月
建筑类型板楼
建筑年代2026年
绿 化 率30%
容 积 率2
人车分流
总楼栋数26
总 户 数1277
小区日照
周边配套
免责声明:房源信息由网站用户提供,其真实性、合法性由信息提供者负责,最终以政府部门登记备案为准。本网站不声明或保证内容之正确性和可靠性,购买该房屋时,请谨慎核查。入学情况仅凭历史经验总结,在此不承诺升学事宜。请您在签订合同之前,切勿支付任何形式的费用,以免上当受骗。