房天下>北京二手房>密云二手房>宾阳二手房>宾阳里二手房

南北通透宾阳里2室1厅

分享

微信扫一扫分享好友
更多分享>

收藏

下载房天下APP
楼盘动态及时知

基本信息
建筑年代2002年
有无电梯
产权性质 商品房
挂牌时间 2025-11-28
梯户比例 暂无数据
供暖方式 暂无数据
房屋结构 平层
抵押信息 暂无数据
楼层高度 暂无数据
上次交易 暂无数据
房源动态
  • -
    房源浏览(人)
  • -
    房源带看(次)
  • -
    关注房源(人)
  • 当前房源报价为:138.00万
    2026-02-18

微信扫码查看更多

房源描述
  • 核心卖点
    相信为您推荐的这套房子您一定会满意,赶快行动吧,先到先得!
    房屋年代∶2002,面积∶69.16平方米,朝向∶南北
    1. 小区配备高端物业管理,让你享受宾至如归的服务;
    2. 小区人文素质高,是您的居家的绝佳选择;
    3. 小区居住安静舒适,让您拥有高品质的生活环境;
    4. 小区绿化率高,绿树成荫鸟语花香让您随时呼吸到新鲜空气。
房源图片
室内图
室内图
室内图
室内图
室内图
室内图
室内图
室内图
室内图
室内图
室内图
室内图
室内图
室内图
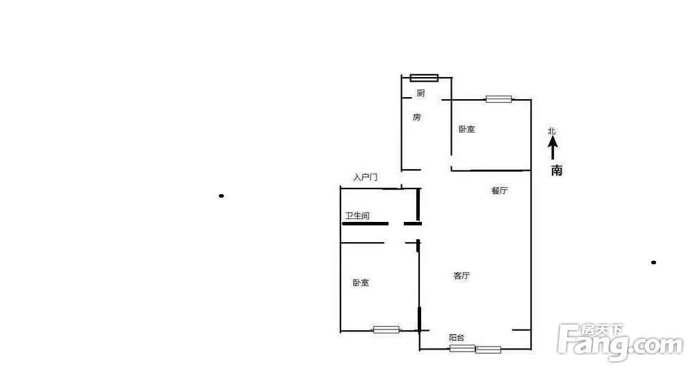
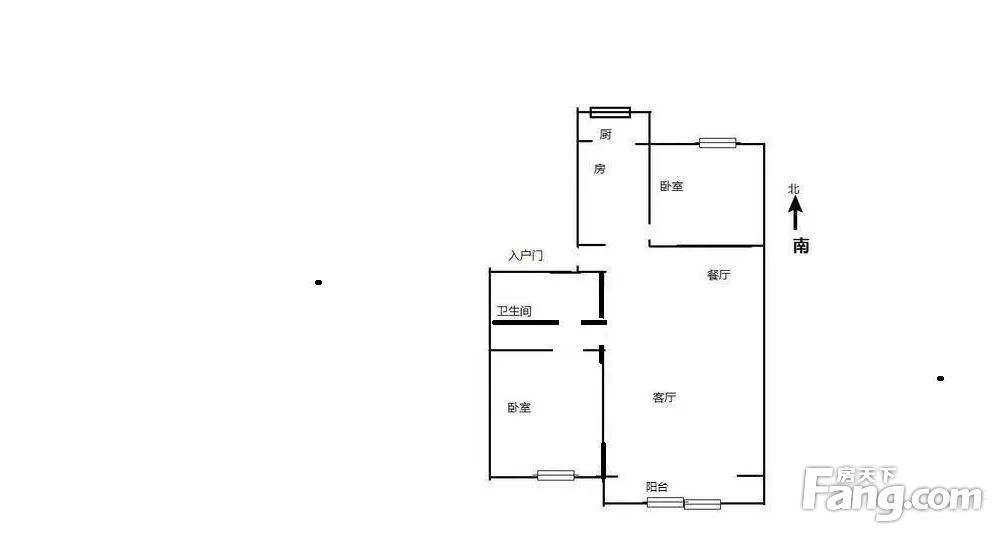
户型图
户型图
138
满五满五
2室1厅1卫
户型
69.16平米
建筑面积
19954元/平米
单价
南北
朝向
中层
楼层(共6层)
简装修
装修
小      区
区      域
北京金色时光房地产经纪有...

营业执照

宾阳里小区信息
参考均价17487元/平米
同比去年↓9.83%
环比上月↑0.81%
收藏
物业类型 住宅
物业费用0.75元/㎡·月
建筑类型板楼,塔楼
建筑年代1998年
绿 化 率15%
容 积 率1.9
人车分流
总楼栋数58
总 户 数3172
小区图片
周边配套
免责声明:房源信息由网站用户提供,其真实性、合法性由信息提供者负责,最终以政府部门登记备案为准。本网站不声明或保证内容之正确性和可靠性,购买该房屋时,请谨慎核查。入学情况仅凭历史经验总结,在此不承诺升学事宜。请您在签订合同之前,切勿支付任何形式的费用,以免上当受骗。