房天下>北京二手房>朝阳二手房>奥林匹克公园二手房>国奥村二手房

奥森公园南门 国奥村 南排 动静分离 带保姆间 装修好

分享

微信扫一扫分享好友
更多分享>

收藏

下载房天下APP
楼盘动态及时知

基本信息
建筑年代2009年
有无电梯
产权性质 个人产权
挂牌时间 2025-11-25
梯户比例 暂无数据
供暖方式 暂无数据
房屋结构 平层
抵押信息 暂无数据
楼层高度 暂无数据
上次交易 暂无数据
房源动态
  • -
    房源浏览(人)
  • -
    房源带看(次)
  • -
    关注房源(人)
  • 当前房源报价为:1990.00万
    2026-02-18

微信扫码查看更多

房源描述
  • 核心卖点
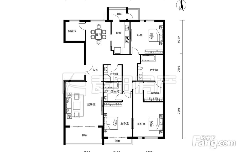
    1、户型:国奥村C7,最南排,2层南北通透三居室,带三个卫生间,动静分离,互不干扰。双卧客厅南向,主人房套房设计,独立卫生间和步入式衣帽间;客厅全落地阳台,无高层建筑,采光通风良好。餐客厅分离,北向带保姆间,餐厅全落地阳台,厨房带储物阳台,实用。
    2、装修:业主一手买的,二次现代装修,保持的很干净。
    3、环境:完全人车分流,封闭管理,物业负责,环境很好,人文素质高,绿化覆盖高40%,南方园林风格,安静宜居。
    4、位置:位于奥林匹克森林公园南门,8号线林萃桥和15号线奥林匹克公园站,环境好。生活配套成熟,衣食出行便利齐全。
    5、与周边小区对比:奥森西门的平层别墅,具备稀/缺性。小区40%的绿化,森林环绕,1.6的容积/率,物业费3.5元。小区有会所游泳池和餐厅。
  • 业主心态
    我认识业主6年,是我成交过的老客户,了解其售房动向,业主卖房变现,价格可谈,看房方便,预约即可,详情请咨询同步
  • 税费分析
    我看过房本原件和契税票,产权清晰,满五年,只有契税,详情请咨询我
  • 小区配套
    北侧紧邻气势恢宏的奥林匹克森林公园,122公顷龙形水系相当于3个北海公园水面,有效净化区域空气,赋予国奥村得天独厚的高品质居住环境。居住人群大多是中科院的研究人员和大学教授等高素质人群。
  • 服务介绍
    我服务奥林匹克森林公园周边业主9年,熟悉周边产品,秉承公司利他文化,以诚待人,保证服务交易安全,高效,透明。赢得客户信任是我持续追求的方向。全北京新房都有合作,享受团购优惠价。
  • 户型解读
    国奥村C7,最南排,2层南北通透三居室,带三个卫生间,动静分离,互不干扰。双卧客厅南向,主人房套房设计,独立卫生间和步入式衣帽间;客厅全落地阳台,无高层建筑,采光通风良好。餐客厅分离,北向带保姆间,餐厅全落地阳台,厨房带储物阳台,实用。
房源图片
室内图
室内图
室内图
室内图
室内图
室内图
室内图
室内图
室内图
室内图
室内图
室内图
室内图
室内图
室内图
室内图
室内图
室内图
室内图
室内图
室内图
室内图
小区相关图
小区相关图
小区相关图
小区相关图
小区相关图
小区相关图
小区相关图
小区相关图
小区相关图
小区相关图
小区相关图
小区相关图
小区相关图
小区相关图
小区相关图
小区相关图
小区相关图
小区相关图
小区相关图
小区相关图
户型图
户型图
1990
地暖拎包入住配套成熟采光好
3室2厅3卫
户型
202平米
建筑面积
98515元/平米
单价
南北
朝向
低层
楼层(共6层)
精装修
装修
小      区
北京麦田房产经纪有限公司

营业执照

闪电回复
国奥村小区信息
参考均价115510元/平米
同比去年↑1.38%
环比上月↓0.73%
收藏
物业类型 住宅
物业费用3.5元/㎡·月
建筑类型板楼
建筑年代2007年
绿 化 率45%
容 积 率1.5
人车分流
总楼栋数43
总 户 数1885
小区日照
小区图片
周边配套
免责声明:房源信息由网站用户提供,其真实性、合法性由信息提供者负责,最终以政府部门登记备案为准。本网站不声明或保证内容之正确性和可靠性,购买该房屋时,请谨慎核查。入学情况仅凭历史经验总结,在此不承诺升学事宜。请您在签订合同之前,切勿支付任何形式的费用,以免上当受骗。