房天下>北京二手房>顺义二手房>中央别墅区二手房>龙湾别墅二手房

一梯一户11米面宽 品质改善4居室 有车位

分享

微信扫一扫分享好友
更多分享>

收藏

下载房天下APP
楼盘动态及时知

基本信息
有无电梯
产权性质 个人产权
挂牌时间 2025-11-18
梯户比例 暂无数据
供暖方式 暂无数据
房屋结构 平层
抵押信息 暂无数据
楼层高度 暂无数据
上次交易 暂无数据
房源动态
  • -
    房源浏览(人)
  • -
    房源带看(次)
  • -
    关注房源(人)
  • 当前房源报价为:1280.00万
    2026-02-19

微信扫码查看更多

房源描述
  • 核心卖点
    相信为您推荐的这套房子您一定会满意,赶快行动吧,先到先得!
    房屋面积∶216.58平方米,朝向∶正南
    1. 小区配备良好物业管理,让你享受宾至如归的服务;
    2. 小区人文素质高,是您的居家的品质选择;
    3. 小区环境安静舒适,让您拥有高品质的生活环境;
    4. 小区绿化高,绿树成荫鸟语花香让您随时呼吸到新鲜空气。
  • 小区配套
    龙湾别墅有11万平方米自然公园、4万平方米君子湖、下沉式入户温泉、6000平方米龙湾会、8000平方米滨湖乐客湾、龙湾别墅不仅以原创建筑承载内心愿望,更以全优的环境和配套彰显上层品位,成就生活之美。项目其总用地面积1800亩,其中建设用地1000亩,分四期开发。
房源图片
室内图
室内图
室内图
室内图
室内图
室内图
室内图
室内图
室内图
室内图
室内图
室内图
室内图
室内图
室内图
室内图
室内图
室内图
室内图
室内图
室内图
室内图
室内图
室内图
室内图
室内图
室内图
室内图
室内图
室内图
室内图
室内图
室内图
室内图
小区相关图
小区相关图
小区相关图
小区相关图
小区相关图
小区相关图
小区相关图
小区相关图
小区相关图
小区相关图
小区相关图
小区相关图
小区相关图
小区相关图
小区相关图
小区相关图
户型图
户型图
1280
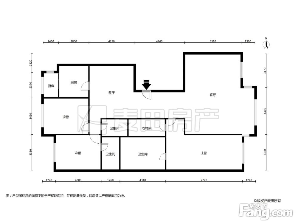
4室2厅3卫
户型
216.58平米
建筑面积
59101元/平米
单价
进门朝向
6层
地上层数
精装修
装修程度
小      区
区      域
龙湾别墅小区信息
参考均价56093元/平米
同比去年↓4.74%
环比上月↓4.22%
收藏
物业类型 别墅
物业费用6.9元/㎡·月
建筑类型独栋,叠拼
产权年限70
建筑年代2004年
绿 化 率45%
容 积 率0.62
人车分流
总楼栋数623
总 户 数1257
小区图片
周边配套
免责声明:房源信息由网站用户提供,其真实性、合法性由信息提供者负责,最终以政府部门登记备案为准。本网站不声明或保证内容之正确性和可靠性,购买该房屋时,请谨慎核查。入学情况仅凭历史经验总结,在此不承诺升学事宜。请您在签订合同之前,切勿支付任何形式的费用,以免上当受骗。