房天下>北京二手房>通州二手房>宋庄二手房>格拉斯小镇二手房

物业直售通州格拉斯小镇南向精装修合院 着急出售

分享

微信扫一扫分享好友
更多分享>

收藏

下载房天下APP
楼盘动态及时知

基本信息
建筑年代2023年
有无电梯
产权性质 个人产权
挂牌时间 2025-11-17
梯户比例 暂无数据
供暖方式 暂无数据
房屋结构 挑高
抵押信息 暂无数据
楼层高度 3.3
上次交易 暂无数据
房源动态
  • -
    房源浏览(人)
  • -
    房源带看(次)
  • -
    关注房源(人)
  • 当前房源报价为:2000.00万
    2026-02-03

微信扫码查看更多

房源描述
  • 核心卖点
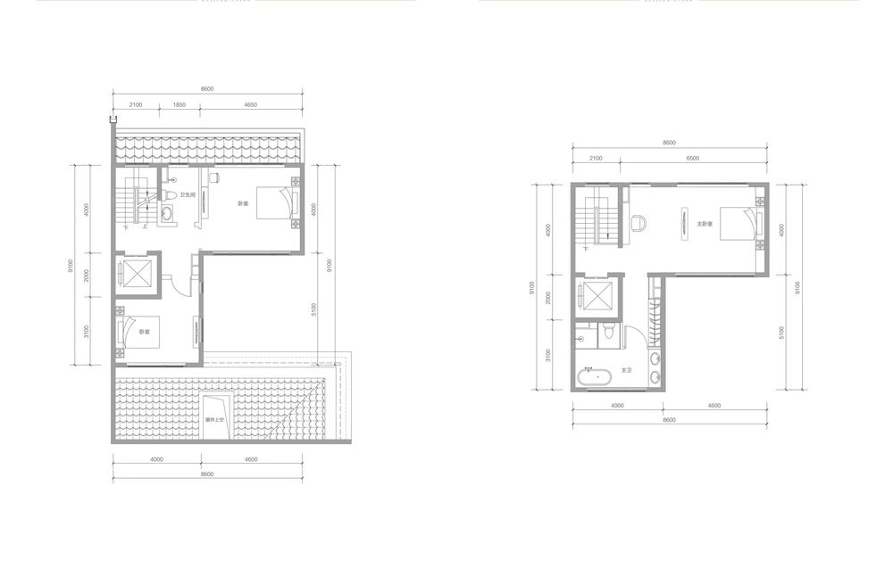
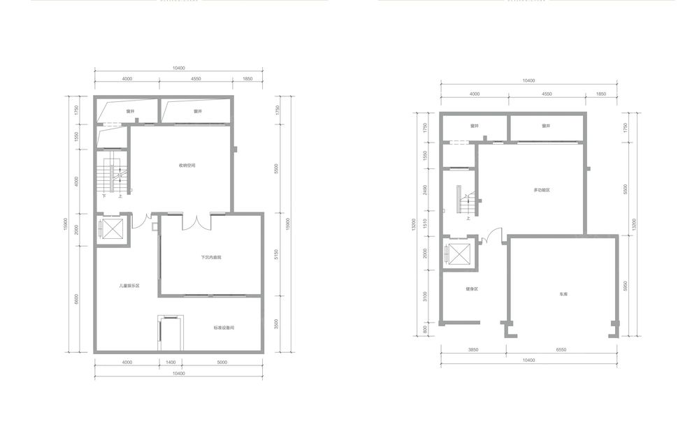
    这套位于通州宋庄格拉斯小镇的南向精装别墅,建筑面积达500平米,地上三层空间布局合理,拥有6间卧室、3个客厅和4个卫浴空间,满足大家庭高品质居住需求。2023年建成的物业保持崭新状态,满二的房本年限为购房者提供了更多便利。

    别墅采用南北通透设计,精装修标准彰显品质,在区域内具有较高性价比。格拉斯路与滨河路交叉点的优越位置,既保证了出行的便捷性,又兼顾了居住的私密性与舒适度,是追求品质生活人士的理想之选。
  • 业主心态
    业主诚意出售,价格可谈,随时出售
  • 小区配套
    东五环低密大盘
    项目位于温榆河畔,拥有3400亩的超大体量,1100亩欧洲园林成就了仅0.3的容积率和高达70%的绿化率,打造了一个醇正的欧式小镇,创造京城之 ;
    温榆河 美丽的支流老河湾蜿蜒穿过园区,造就了24公顷自然水域的环绕,同时还有300亩原生湿地及大量珍禽,千亩荷花塘、薰衣草花海等;这些不但调了居住、休闲、娱乐、商务办公等一系列功能需求外,还将自然资源与人造景观 融合,造福业主。
    立体接驳国际机场与CBD核心让世界离得更近
    东五环,独栋墅区,贯穿6条高速快道:机场路、京平路、京通路、李天路、壁富路以及第二条机场高速路;一 首都机场,半CBD、燕莎, 出行之便利;
  • 服务介绍
    我是格拉斯小镇物业直属的租售专员马帅, 所有在租在售均是源信息, 不用东奔西跑问中介,不用怕信息过期不准,小区“活地图”+“百事通”!哪栋楼采光好?哪个户型实用?关于小区一切,问我准没错!
  • 户型解读
    电梯:迅达品牌
    外立面:为土耳其米黄石材,及氟碳喷涂铝板幕墙装饰
    门窗:采用德国旭格或同等品牌,断桥铝合金门窗,隔音、隔热系数符合住宅设计规范
房源图片
室内图
室内图
室内图
室内图
室内图
室内图
室内图
室内图
室内图
室内图
室内图
室内图
室内图
室内图
室内图
室内图
室内图
室内图
小区相关图
小区相关图
小区相关图
小区相关图
小区相关图
小区相关图
小区相关图
小区相关图
小区相关图
小区相关图
户型图
户型图
户型图
户型图
户型图
户型图
2000
6室3厅4卫
户型
380平米
建筑面积
52632元/平米
单价
进门朝向
3层
地上层数
精装修
装修程度
小      区
区      域
北京鑫圆房地产经纪有限公...

营业执照

格拉斯小镇小区信息
参考均价50271元/平米
同比去年↓9.91%
环比上月↑0.29%
收藏
物业类型 别墅
物业费用6.19元/㎡·月
建筑类型叠拼,合院
产权年限70
建筑年代2019年
绿 化 率30%
容 积 率1.03
人车分流
总楼栋数741
总 户 数1045
小区图片
周边配套
免责声明:房源信息由网站用户提供,其真实性、合法性由信息提供者负责,最终以政府部门登记备案为准。本网站不声明或保证内容之正确性和可靠性,购买该房屋时,请谨慎核查。入学情况仅凭历史经验总结,在此不承诺升学事宜。请您在签订合同之前,切勿支付任何形式的费用,以免上当受骗。