房天下>北京二手房>丰台二手房>宋家庄二手房>金茂璞逸丰宜二手房

丰台宋家庄,地铁5号线金茂璞逸丰宜,科技住宅,三环首排

分享

微信扫一扫分享好友
更多分享>

收藏

下载房天下APP
楼盘动态及时知

基本信息
建筑年代2025年
有无电梯
产权性质 个人产权
挂牌时间 2025-12-26
梯户比例 暂无数据
供暖方式 暂无数据
房屋结构 平层
抵押信息 暂无数据
楼层高度 暂无数据
上次交易 暂无数据
房源动态
  • -
    房源浏览(人)
  • -
    房源带看(次)
  • -
    关注房源(人)
  • 当前房源报价为:1100.00万
    2026-02-18

微信扫码查看更多

房源描述
  • 核心卖点
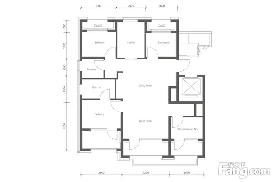
    这套位于金茂璞逸丰宜的三居室住宅,建筑面积达133.29,采用精装修标准,整体空间布局合理。房屋位于建筑的中层位置,南向朝向保证了室内良好的采光条件,舒适度高。

    该房源地处丰台区宋家庄东铁匠营街道,地理位置优越。作为金茂开发的项目,小区品质有保障。目前报价1100万,性价比突出。空间利用,适合改善型家庭需求。
  • 业主心态
    24在线:(VX)
  • 税费分析
    关于本房的税费信息情况,请电话联系我,我将详细的为您讲解!
  • 小区配套

    配套介绍 1. 交通【三横三纵三轨】 三横:二环、三环、四环; 三纵:榴乡路、京沪高速、成寿寺路; 三轨道:地铁5号线、地铁10号线、亦庄 2. 教育【优质教育资源】丰台实验小学、成寿寺小学、东铁匠营第二小学,北京十八中左安门分校 3. 医疗【七大三甲医院】 协和医院、同仁医院、北京医院、友谊医院、佑安医院、东方医院、中国医学科学院肿瘤医院。 4. 商业【TOP级商业中心】 SKP、王府中环、三里屯、朝阳合生汇、燕莎奥莱、王府井奥莱、天桥乐汇购物中心、方庄购物中心、新业广场等。 5. 休闲【六大城市公园】 龙潭公园、永定门公园、陶然亭公园、万芳亭公园、石榴庄城市休闲公园、方庄城市 6
  • 服务介绍
    本人做房产多年,一直本着专业的房产知识,为您服务,我会在短的时间内帮您买好满意的房子,不让您错失任何好房子,更不让您每天为买房的事烦心,欢迎随时拨打我电话
  • 户型解读
    一、三环首排:与南三环直线距离约300米,串联CBD、亚奥、科教区、文博区等功能区,畅达国贸、三里屯、蓝港等潮流商圈,速抵天坛、前门等京韵文脉。 二、金茂力作:金茂出品、必属精品,金茂璞系北京开篇之作,金茂品牌品质兑现能力保障。 三、12大科技:金茂科技住宅,舒湿舒温舒氧舒净舒静五舒居境,响誉全国15年的健康舒居生活。 四、高端产品:落地北京市好房子标准,内嵌式阳台、开敞式花池、架空层等领先设计,超高使用率,超高居住舒适度。 五、高定会所:约2000㎡浮岛合院会所+架空层泛会所+三重下沉庭院打造大会所体系,圈层社交场域,酒店式至臻服务,专业团队运营。 六、6S居住场景:涵盖科技舒居、深度睡
房源图片
室内图
室内图
室内图
室内图
室内图
室内图
室内图
室内图
室内图
室内图
室内图
室内图
室内图
室内图
室内图
室内图
室内图
室内图
室内图
室内图
室内图
室内图
室内图
室内图
室内图
室内图
室内图
室内图
室内图
室内图
户型图
户型图
1100
复式景观房拎包入住黄金楼层
4室2厅2卫
户型
133.29平米
建筑面积
82527元/平米
单价
南北
朝向
中层
楼层(共11层)
精装修
装修
小      区
金茂璞逸丰宜(距5号线宋家庄站约1023米)
区      域
北京誉泽房地产经纪有限公...

营业执照

金茂璞逸丰宜小区信息
参考均价91947元/平米
同比去年 暂无资料
环比上月↓0.17%
收藏
物业类型 住宅
建筑类型板楼
建筑年代2027年
绿 化 率30%
容 积 率2.75
人车分流
总楼栋数14
总 户 数504
周边配套
免责声明:房源信息由网站用户提供,其真实性、合法性由信息提供者负责,最终以政府部门登记备案为准。本网站不声明或保证内容之正确性和可靠性,购买该房屋时,请谨慎核查。入学情况仅凭历史经验总结,在此不承诺升学事宜。请您在签订合同之前,切勿支付任何形式的费用,以免上当受骗。