房天下>北京二手房>房山二手房>长阳二手房>新城投·御河园二手房

长阳板块 地铁精装现房 御河园 教育。北京四种,皇城根枭穴

分享

微信扫一扫分享好友
更多分享>

收藏

下载房天下APP
楼盘动态及时知

基本信息
建筑年代2024年
有无电梯
产权性质 个人产权
挂牌时间 2025-12-01
梯户比例 暂无数据
供暖方式 暂无数据
房屋结构 平层
抵押信息 暂无数据
楼层高度 暂无数据
上次交易 暂无数据
房源动态
  • -
    房源浏览(人)
  • -
    房源带看(次)
  • -
    关注房源(人)
  • 当前房源报价为:280.00万
    2026-02-19

微信扫码查看更多

房源描述
  • 核心卖点
    【新城投·御河园·住宅】房源动态御河园「精妆现房」现房销售,首付29万起
    1、南向一居65m2199-230万(房一层199万,十层210万)
    2、南向两居84/88m2249-280万(房一层249万,顶层263万)
    3、南北两居室89m2252-300万(房北厅255万起一层、二层)
    4、南北三居室110m2双卫338-399万(房358万一层)
    5、南北三居室116m2单卫299-380万(房一层319万四层335万)
    【项目核心】
    1.道路交通:项目位于房山区长阳板块,紧临京深路、京良路,距离5环4.8,自驾出行极其便利,可实现25通达市区。轨道交通:项目距离房山线长阳地铁站约1.3。
    2.区域优势:长阳作为房山核心板块连接市区枢纽已经近10年没有新房土地供应,长阳拥有整个房山区较的资源,医疗资源,华北区域大的奥特莱斯,多个超10万方以上配套是资源。
    3.项目优势:国企开发,精妆修准现房,规避房屋烂尾、交付、工程质量差等风险,高品质看得见摸得着。
    4.户型产品优势:65平米到120平米1至3居,南北通透,使用,2梯3和2梯4的设计,无连廊浪费面积小
    5.区域规划优势:项目整体体量大,后续入口密度很高,政府配件配套比较完善,规划有、、,中心公园,体育场等。
  • 业主心态
    房东置换,诚心出售,可以再谈,欢迎看房,随时恭候。
  • 税费分析
    关于本房的税费信息情况,请电话联系我,我将详细的为您讲解!
  • 小区配套
    小区地理位置佳,绿化环境优越整洁,居民素质高,物业管理完善,适宜
  • 服务介绍
    本人做房产多年,一直本着专业的房产知识,为您服务,我会在短的时间内帮您买好满意的房子,不让您错失任何好房子,更不让您每天为买房的事烦心,欢迎随时拨打我电话。
房源图片
室内图
室内图
室内图
室内图
室内图
室内图
室内图
室内图
室内图
室内图
室内图
室内图
小区相关图
小区相关图
小区相关图
小区相关图
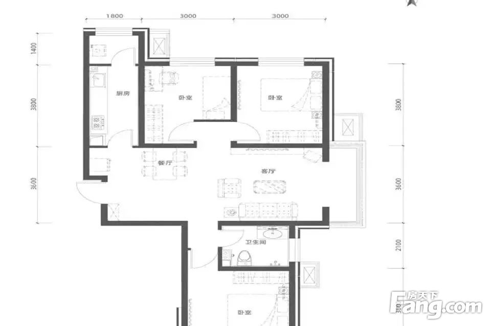
户型图
户型图
户型图
户型图
户型图
户型图
280
拎包入住首付低性价比高业主急售
3室2厅1卫
户型
116平米
建筑面积
24138元/平米
单价
南北
朝向
底层
楼层(共6层)
精装修
装修
小      区
区      域
北京誉泽房地产经纪有限公...

营业执照

新城投·御河园小区信息
参考均价25830元/平米
同比去年 暂无资料
环比上月↓8.79%
收藏
物业类型 住宅
物业费用3.5元/㎡·月
建筑类型板楼
建筑年代2024年
绿 化 率30%
容 积 率2.49
人车分流
小区图片
周边配套
免责声明:房源信息由网站用户提供,其真实性、合法性由信息提供者负责,最终以政府部门登记备案为准。本网站不声明或保证内容之正确性和可靠性,购买该房屋时,请谨慎核查。入学情况仅凭历史经验总结,在此不承诺升学事宜。请您在签订合同之前,切勿支付任何形式的费用,以免上当受骗。