房天下>北京二手房>石景山二手房>鲁谷二手房>长安悦玺二手房

新出清盘特惠房,西四环临地铁,国企开发,精装修四居,随时可看

分享

微信扫一扫分享好友
更多分享>

收藏

下载房天下APP
楼盘动态及时知

基本信息
建筑年代2019年
有无电梯
产权性质 个人产权
挂牌时间 2026-01-16
梯户比例 暂无数据
供暖方式 暂无数据
房屋结构 平层
抵押信息 暂无数据
楼层高度 暂无数据
上次交易 暂无数据
房源动态
  • -
    房源浏览(人)
  • -
    房源带看(次)
  • -
    关注房源(人)
  • 当前房源报价为:620.00万
    2026-02-03

微信扫码查看更多

房源描述
  • 核心卖点
    石景山古城板块改善住宅(享受石景山和海淀两区的便利)
    现房 现房 现房
    【销售状态】顺销
    【 年 】70年
    【产品类型】洋房,高层
    【容 积 率】2.8
    【总 楼 栋】14栋
    【总 户 数】917户
    【层 高】高层2.95米 洋房3米
  • 业主心态
    1.交通方式:
    四横四纵四轨道,M11号线鲁谷大街站500米(规划中)
    2.商业配套:
    6大商圈环伺,京西长安繁华起点
    3.教育配套:
    石景山实验幼儿园、北京爱乐实验小学、京源学校、景山学校、北京十一学校
    4.医疗配套:
    三甲医院汇聚,全维健康护航
  • 税费分析
    关于本房的税费信息情况,请电话联系我,我将详细的为您讲解1
  • 服务介绍
    所有服务,不收任何费用,我们是渠道经纪人,是受开发商委托宣传,不 收任何费用,您不用多花 钱的成本,陪同看房。
    您的满意就是我的动力,公司有大量新房楼盘,为您而选,为您安家。
房源图片
室内图
室内图
室内图
室内图
室内图
室内图
室内图
室内图
室内图
室内图
室内图
室内图
室内图
室内图
室内图
室内图
室内图
室内图
室内图
室内图
小区相关图
小区相关图
小区相关图
小区相关图
小区相关图
小区相关图
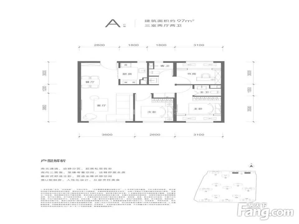
户型图
户型图
户型图
户型图
户型图
户型图
620
满五满五性价比高首付低拎包入住配套成熟
4室2厅2卫
户型
124平米
建筑面积
50000元/平米
单价
南北
朝向
中层
楼层(共16层)
精装修
装修
小      区
区      域
北京万家鼎盛房地产经纪有...

营业执照

长安悦玺小区信息
参考均价53536元/平米
同比去年↓36.98%
环比上月↓1.81%
收藏
物业类型 住宅
物业费用6.6元/㎡·月
建筑类型板楼
产权年限70
绿 化 率30%
容 积 率2.8
人车分流
总楼栋数13
总 户 数1223
小区日照
周边配套
免责声明:房源信息由网站用户提供,其真实性、合法性由信息提供者负责,最终以政府部门登记备案为准。本网站不声明或保证内容之正确性和可靠性,购买该房屋时,请谨慎核查。入学情况仅凭历史经验总结,在此不承诺升学事宜。请您在签订合同之前,切勿支付任何形式的费用,以免上当受骗。