房天下>北京二手房>朝阳二手房>望京二手房>首开国风尚樾二手房

3室2厅首开国风尚樾

分享

微信扫一扫分享好友
更多分享>

收藏

下载房天下APP
楼盘动态及时知

基本信息
建筑年代2018年
有无电梯
产权性质 个人产权
挂牌时间 2026-01-10
梯户比例 暂无数据
供暖方式 暂无数据
房屋结构 平层
抵押信息 暂无数据
楼层高度 暂无数据
上次交易 暂无数据
房源动态
  • -
    房源浏览(人)
  • -
    房源带看(次)
  • -
    关注房源(人)
  • 当前房源报价为:1650.00万
    2026-02-19

微信扫码查看更多

房源描述
  • 核心卖点
    相信为您推荐的这套房子您一定会满意,赶快行动吧,先到先得!
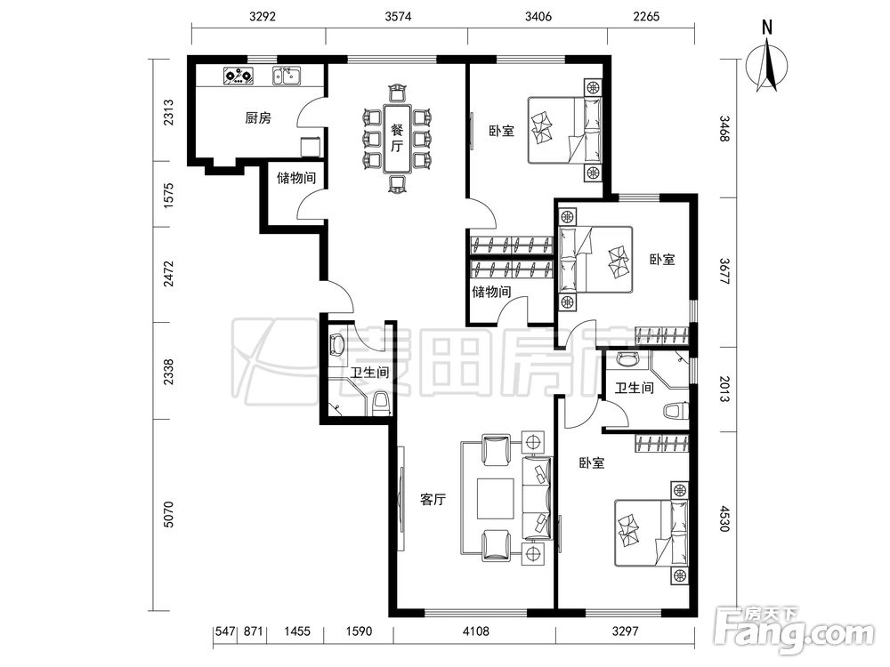
    房屋年代∶2018,面积∶167.61平方米,朝向∶南北
    1. 小区配备高端物业管理,让你享受宾至如归的服务;
    2. 小区人文素质高,是您的居家的绝佳选择;
    3. 小区居住安静舒适,让您拥有高品质的生活环境;
    4. 小区绿化率高,绿树成荫鸟语花香让您随时呼吸到新鲜空气。
  • 小区配套
    国风尚樾是封闭式社区,24门岗,从入小区到大堂,再到进入电梯均需要刷卡,充分保证了业主的居住安全;小区是通体石材外立面,园区内有儿童活动区,集中水系,大约1公里的专业跑道,让家庭成员们足不出户,就可以在园区里身心得到充分的放松。
房源图片
室内图
室内图
室内图
室内图
室内图
室内图
室内图
室内图
室内图
室内图
室内图
室内图
室内图
室内图
室内图
室内图
室内图
室内图
室内图
室内图
小区相关图
小区相关图
小区相关图
小区相关图
小区相关图
小区相关图
小区相关图
小区相关图
小区相关图
小区相关图
小区相关图
小区相关图
小区相关图
小区相关图
小区相关图
小区相关图
小区相关图
小区相关图
户型图
户型图
1650
3室2厅2卫
户型
167.61平米
建筑面积
98443元/平米
单价
南北
朝向
高层
楼层(共14层)
豪华装修
装修
小      区
首开国风尚樾(距14号线望京站约1028米)
区      域
首开国风尚樾小区信息
参考均价102339元/平米
同比去年↓12.43%
环比上月↓1.96%
收藏
物业类型 住宅
物业费用8元/㎡·月
建筑类型板楼
产权年限70
建筑年代2017年
绿 化 率30%
容 积 率3.3
人车分流
总楼栋数5
总 户 数385
小区图片
周边配套
免责声明:房源信息由网站用户提供,其真实性、合法性由信息提供者负责,最终以政府部门登记备案为准。本网站不声明或保证内容之正确性和可靠性,购买该房屋时,请谨慎核查。入学情况仅凭历史经验总结,在此不承诺升学事宜。请您在签订合同之前,切勿支付任何形式的费用,以免上当受骗。