房天下>北京二手房>密云二手房>密云其它二手房>白河涧别墅二手房

白河涧别墅4室2厅精装修

分享

微信扫一扫分享好友
更多分享>

收藏

下载房天下APP
楼盘动态及时知

基本信息
建筑年代2005年
有无电梯
产权性质 商品房
挂牌时间 2025-09-17
梯户比例 暂无数据
供暖方式 暂无数据
房屋结构 平层
抵押信息 暂无数据
楼层高度 暂无数据
上次交易 暂无数据
房源动态
  • -
    房源浏览(人)
  • -
    房源带看(次)
  • -
    关注房源(人)
  • 当前房源报价为:600.00万
    2026-02-18

微信扫码查看更多

房源描述
  • 核心卖点
    相信为您推荐的这套房子您一定会满意,赶快行动吧,先到先得!
    房屋年代∶2005,面积∶186.06平方米,朝向∶
    1. 小区配备高端物业管理,让你享受宾至如归的服务;
    2. 小区人文素质高,是您的居家的绝佳选择;
    3. 小区居住安静舒适,让您拥有高品质的生活环境;
    4. 小区绿化率高,绿树成荫鸟语花香让您随时呼吸到新鲜空气。
房源图片
室内图
室内图
室内图
室内图
室内图
室内图
室内图
室内图
室内图
室内图
室内图
室内图
室内图
室内图
室内图
室内图
室内图
室内图
室内图
室内图
室内图
室内图
室内图
室内图
室内图
室内图
室内图
室内图
室内图
室内图
室内图
室内图
室内图
室内图
室内图
室内图
室内图
室内图
小区相关图
小区相关图
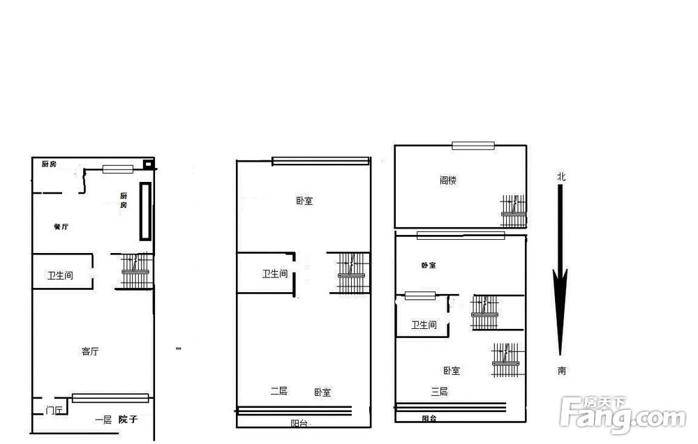
户型图
户型图
600
满五满五
4室2厅3卫
户型
186.06平米
建筑面积
32248元/平米
单价
进门朝向
3层
地上层数
精装修
装修程度
小      区
区      域
北京金色时光房地产经纪有...

营业执照

白河涧别墅小区信息
参考均价35147元/平米
同比去年↑26.84%
环比上月↓3.75%
收藏
物业类型 别墅
物业费用0.8元/㎡·月
建筑类型联排,独栋
建筑年代2005年
绿 化 率42.8%
容 积 率0.7
人车分流
总楼栋数1
总 户 数4
小区图片
周边配套
免责声明:房源信息由网站用户提供,其真实性、合法性由信息提供者负责,最终以政府部门登记备案为准。本网站不声明或保证内容之正确性和可靠性,购买该房屋时,请谨慎核查。入学情况仅凭历史经验总结,在此不承诺升学事宜。请您在签订合同之前,切勿支付任何形式的费用,以免上当受骗。