房天下>北京二手房>通州二手房>北关二手房>万科东庐二手房

万科东庐 68平2居 南北向精装修 着急出售

分享

微信扫一扫分享好友
更多分享>

收藏

下载房天下APP
楼盘动态及时知

基本信息
建筑年代2024年
有无电梯
产权性质 个人产权
挂牌时间 2025-05-09
梯户比例 暂无数据
供暖方式 暂无数据
房屋结构 平层
抵押信息 暂无数据
楼层高度 7
上次交易 暂无数据
房源动态
  • -
    房源浏览(人)
  • -
    房源带看(次)
  • -
    关注房源(人)
  • 当前房源报价为:380.00万
    2026-02-20

微信扫码查看更多

房源描述
  • 核心卖点
    项目地址:六号线物资开发商:万科总户数:874户:2.0:30%车位比:1:1.2总高:4-11层小洋房梯户比:一梯两户,一梯三户交房时间:2025年12月底在售面积:63平,75平,89平,98平,120平的两居到四居物业:万科物业,物业费:5.49元/平/月周边交通:六号线物资站,另有多路线周边:常营龙湖天街,华联商城周边医疗:朝阳医院东院区,友谊医院,胸科医院等多家医院周边生态:东郊森林公园,邓家窑公园,五里桥公园,温榆河森林公园等,生态环境好,比较宜居。
  • 业主心态
    1、北京万科历时4年才寻找到一块我们认为有价值的地块,集全集团之力打造【拿地故事+品牌,强调重要性和好项目的底层逻辑】

    2、朝阳北路+地铁6号线物资站旁

    3、价格倒挂、买到好地块好产品的机会【6万VS 8万】

    4、这是在北京600万买到的配套,选择(成熟,丰富,,对比7-8万的王四营、东坝)

    5、地铁6号线上在东部在售的新盘,通勤效效,30到国贸,40到望京,职住宜居平衡

    6、这是北京目前发展好大的地方-运河CBD,且项目和朝阳一路之隔,一旦通州解除,我们溢价空间将会是通州竞争力的,我们这个位置的房价一定是优先起飞的(对比朝阳新房二手房价格7万起,参考

  • 税费分析
    (1)所售房源是开发商新房;

    (2)交房时只需缴纳正常购房契税,购房成本低,品质很高;

    (3)您信任我,我根据您的需求真诚为您析置业北京的在售项目。



  • 小区配套
    小区地理位置佳,绿化环境优越整洁,居民素质高,物业管理完善,适宜

  • 服务介绍
    本人做房产多年,一直本着专业的房产知识,为您服务,我会在短的时间内帮您买好满意的房子,不让您错失任何好房子,更不让您每天为买房的事烦心,欢迎随时拨打我电话。
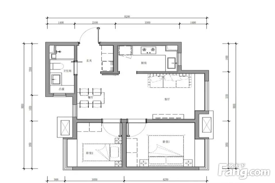
  • 户型解读
    房屋拥有相对宽松的尺寸,布局通透,动静分离,设计豪华
房源图片
室内图
室内图
室内图
室内图
室内图
室内图
室内图
室内图
室内图
室内图
室内图
室内图
室内图
室内图
室内图
室内图
室内图
室内图
室内图
室内图
室内图
室内图
小区相关图
小区相关图
小区相关图
小区相关图
小区相关图
小区相关图
小区相关图
小区相关图
小区相关图
小区相关图
小区相关图
小区相关图
小区相关图
小区相关图
户型图
户型图
户型图
户型图
户型图
户型图
380
配套成熟小区中心首付低
2室1厅1卫
户型
68平米
建筑面积
55882元/平米
单价
南北
朝向
中层
楼层(共8层)
精装修
装修
小      区
万科东庐(距6号线物资学院路站约1020米)
区      域
北京美丽新居房地产经纪有...

营业执照

万科东庐小区信息
参考均价暂无
同比去年 暂无资料
环比上月 暂无资料
收藏
物业类型 住宅
物业费用5.49元/㎡·月
建筑类型板楼
产权年限70
绿 化 率30%
容 积 率2
人车分流
总楼栋数26
总 户 数874
小区日照
周边配套
免责声明:房源信息由网站用户提供,其真实性、合法性由信息提供者负责,最终以政府部门登记备案为准。本网站不声明或保证内容之正确性和可靠性,购买该房屋时,请谨慎核查。入学情况仅凭历史经验总结,在此不承诺升学事宜。请您在签订合同之前,切勿支付任何形式的费用,以免上当受骗。