房天下>北京二手房>密云二手房>密云其它二手房>龙湖长城源著二手房

【龙湖专营】可贷款 龙湖长城原著独立一居室61万

分享

微信扫一扫分享好友
更多分享>

收藏

下载房天下APP
楼盘动态及时知

基本信息
建筑年代2016年
有无电梯
产权性质 个人产权
挂牌时间 2025-05-07
梯户比例 暂无数据
供暖方式 暂无数据
房屋结构 平层
抵押信息 暂无数据
楼层高度 2.9
上次交易 暂无数据
房源动态
  • -
    房源浏览(人)
  • -
    房源带看(次)
  • -
    关注房源(人)
  • 当前房源报价为:61.00万
    2026-02-18

微信扫码查看更多

房源描述
  • 核心卖点
    1司马台长城脚下的社区稀缺资源 不可复制水镇即使自己家的后花园
    2洋房面积小户型 总价低 占用资金比例很少 重要的是可以做民俗的
    3平时居住养生度假的好去处
  • 业主心态
    1 业主另外置业,着急用钱,所以将价格直降到底
    2 如果您相中房子 业主这边还有议价的空间 是您的出手机会
    3 业主诚心换房出售 房源真实有效 看房后有较大议价空间
    4业主很随和,好沟通,家里意见统一,是非常靠谱的房源
  • 税费分析
    1 房本虽然不满5年 但房屋报价低 大票原值高 可以抵扣大笔个税 为您省更多更多
    2此房根据您的购房的实际情况 计算税费
  • 小区配套
    1长城脚下 司马台以起险峻奇著称
    2依托水镇的强大景区 做民俗是很好的选择
    3周边农家饭店亲朋聚会倍感舒适吃得好 玩得好
    4公交便利摆渡车方便上下游玩
  • 服务介绍
    本人从业十余年 聚焦多个密云高端项目,新房和二手房房源多多,给您贴心、周到的服务! 耐心为您介绍每套房屋的优缺点,根据您的需求,为您匹配适合的房源信息
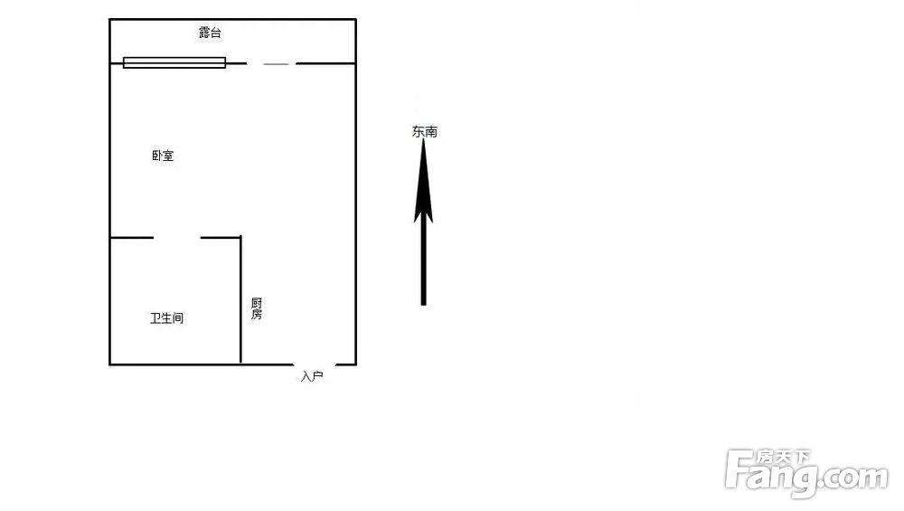
  • 户型解读
    0居1居户型:
    1 户型虽然面积不大 但设计紧凑 功能分区合理 使用便利
    2超经典的小户型 采光俱佳 客厅 厨房 卫生间 大阳台 样样具备!
房源图片
室内图
室内图
室内图
室内图
室内图
室内图
室内图
室内图
室内图
室内图
小区相关图
小区相关图
小区相关图
小区相关图
户型图
户型图
61
满二满二
1室1厅1卫
户型
40平米
建筑面积
15250元/平米
单价
朝向
中层
楼层(共6层)
精装修
装修
小      区
区      域
北京锦绣嘉业房地产经纪有...

营业执照

闪电回复
龙湖长城源著小区信息
参考均价12676元/平米
同比去年↓17.95%
环比上月↑0.37%
收藏
物业类型 住宅
物业费用3.9元/㎡·月
建筑类型板楼
产权年限70
建筑年代2016年
绿 化 率30%
容 积 率1.05
人车分流
总楼栋数75
总 户 数2246
周边配套
免责声明:房源信息由网站用户提供,其真实性、合法性由信息提供者负责,最终以政府部门登记备案为准。本网站不声明或保证内容之正确性和可靠性,购买该房屋时,请谨慎核查。入学情况仅凭历史经验总结,在此不承诺升学事宜。请您在签订合同之前,切勿支付任何形式的费用,以免上当受骗。