房天下>北京二手房>东城二手房>东直门二手房>当代MOMA二手房

观小区湖景,8万,3居单价总价蕞好的房,同售旁边新房单价12

分享

微信扫一扫分享好友
更多分享>

收藏

下载房天下APP
楼盘动态及时知

基本信息
建筑年代2011年
有无电梯
产权性质 商品房
挂牌时间 2025-03-17
梯户比例 暂无数据
供暖方式 暂无数据
房屋结构 暂无数据
抵押信息 暂无数据
楼层高度 暂无数据
上次交易 暂无数据
房源动态
  • -
    房源浏览(人)
  • -
    房源带看(次)
  • -
    关注房源(人)
  • 当前房源报价为:2500.00万
    2026-02-05

微信扫码查看更多

房源描述
  • 核心卖点

    户型描述 此房目前是大一居格局,可以改成4居或者5居都可以
    景观特点 东北观小区6000平米映水湖湖景,位置好,比较安静,可以看到小区园林
    装修特点 开发商统一装修,黑色实木复合地板,欧洲进口厨电
    保养状况 此房保养比较好,业主很爱惜房屋,每个月都做保养
  • 业主心态
    房东置换,诚心出售,价格可以再谈,欢迎看房,随时恭候。
  • 税费分析
    关于本房的税费信息情况,请电话联系我,我将详细的为您讲解!
  • 小区配套
    小区地理位置佳,绿化环境优越整洁,居民素质高,物业管理完善,适宜居住
  • 服务介绍
    本人做房产多年,一直本着专业的房产知识,为您服务,我会在短的时间内帮您买好满意的房子,不让您错失任何好房子,更不让您每天为买房的事烦心,欢迎随时拨打我电话。
  • 户型解读
    房屋拥有相对宽松的尺寸,布局通透,动静分离,设计豪华
房源图片
室内图
室内图
室内图
室内图
室内图
室内图
室内图
室内图
室内图
室内图
室内图
室内图
室内图
室内图
室内图
室内图
室内图
室内图
室内图
室内图
室内图
室内图
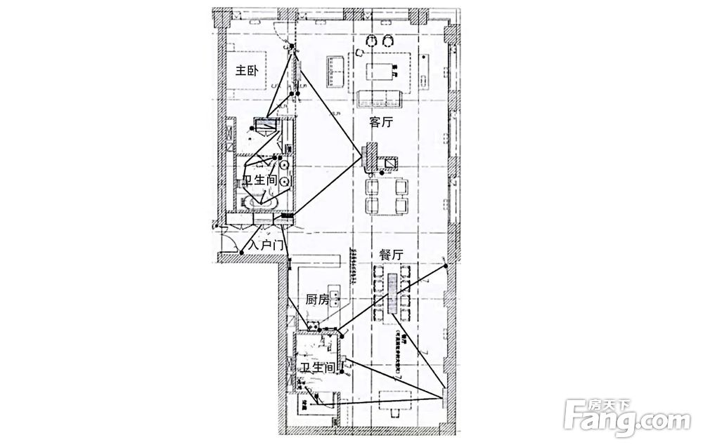
户型图
户型图
2500
满五满五配套成熟小区中心首付低
3室1厅2卫
户型
286.21平米
建筑面积
87348元/平米
单价
朝向
低层
楼层(共20层)
精装修
装修
小      区
当代MOMA(距17号线左家庄约536米)
区      域
北京美丽新居房地产经纪有...

营业执照

当代MOMA小区信息
参考均价100251元/平米
同比去年↓18.1%
环比上月↓2.06%
收藏
物业类型 住宅
物业费用7.5元/㎡·月
建筑类型塔楼
产权年限70
建筑年代2008年
绿 化 率35%
容 积 率2.64
人车分流
总楼栋数12
总 户 数868
小区日照
小区图片
周边配套
免责声明:房源信息由网站用户提供,其真实性、合法性由信息提供者负责,最终以政府部门登记备案为准。本网站不声明或保证内容之正确性和可靠性,购买该房屋时,请谨慎核查。入学情况仅凭历史经验总结,在此不承诺升学事宜。请您在签订合同之前,切勿支付任何形式的费用,以免上当受骗。